Huurwoning Almere

Leeuwardenplein 43, Almere

Korte samenvatting

Locatie
Almere
Huurprijs
€ 692,24
Type woning
Benedenwoning
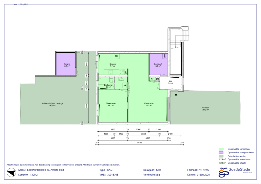
Oppervlakte:
65 m2
Kamers:
2
Slaapkamers:
1
Wachttijd:
(niet ingesteld)
Datum beschikbaar:
8 okt 2025
Maximaal inkomen:
€ 39.055,00
Status:
Verlopen

Omschrijving woning

Er is veel variatie in het aanbod van woningen waardoor een levendige wijk is ontstaan. De woning ligt op loopafstand van het winkelcentrum van Almere-Stad. Voor parkeren geldt een blauwe zone , een parkeervergunning is noodzakelijk. Deze woning is geschikt voor bewoning door 2 personen.

Kaart