Huurwoning Almere

Odeonstraat 1088, Almere

Korte samenvatting

Locatie
Almere
Huurprijs
€ 695,00
Type woning
Benedenwoning
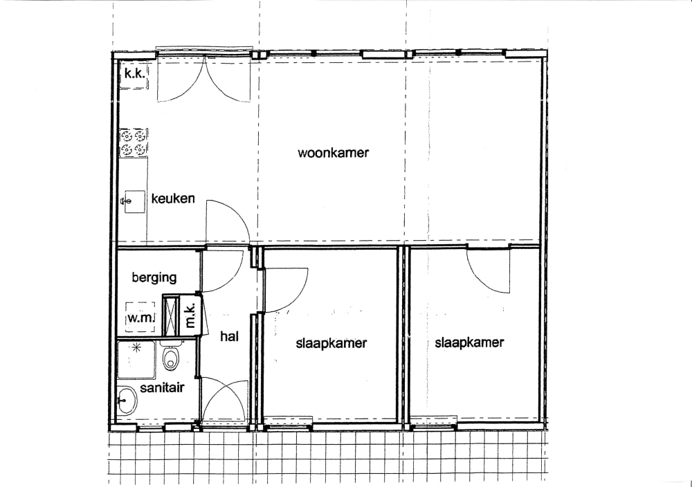
Oppervlakte:
54 m2
Kamers:
3
Slaapkamers:
2
Wachttijd:
(niet ingesteld)
Datum beschikbaar:
3 jun 2025
Maximaal inkomen:
€ 39.055,00
Status:
Verlopen

Omschrijving woning

Driekamer op de begane grond. Studentenwoning in de buurt Filmwijk in Almere-Stad.De woning is gelegen op ongeveer 10 minuten loopafstand van Almere-Centrum.Deze woning is bestemd voor voltijd studenten en maximaal 2 personen.De volgorde van de selectie kunt u vinden op de site van WoningNet bij uitleg van de studentenwoningen.Let op! Inwonende kinderen zijn niet toegestaan!De woning wordt verhuurd met een tijdelijk huurcontract voor de duur van uw studie(s) met een maximum van 8 jaar.Uw WoningNet inschrijfduur blijft u behouden.Er is geen kabelaansluiting mogelijk, alleen Digitenne.De woning behoeft klus- en schilderwerk.WoningBenedenwoningOpen keukenBadkamer en toilet samenWasmachineaansluiting in de bergingGehorigheid: bouwjaar 2005, houdt u rekening met woon- en leef geluiden van omwonendenWel bovenburenBergingStaat van de woningYmere levert iedere woning op met basiskwaliteit: schoon, heel en veilig.Wat moet u zelf doen?Houd er rekening mee dat u zelf ook nog het een en ander moet doen om de woning naar uw smaak te maken. Denk hierbij aan het leggen van vloeren/ondervloeren (minimaal 10 decibel reducerend), afstomen van behang, schilderen/behangen van de muren, deuren, (raam)kozijnen en plafonds.BijzonderhedenGeen inwonende kinderen toegestaanStadsverwarmingElektrisch kokenStadsverwarmingHet is mogelijk om samen te wonen, voorwaarde dat ook de 2e persoon (huisgenoot) een voltijdstudent is.Let op: als u en/of uw mede-inschrijver geen student bent , kunnen wij u geen huurovereenkomst aanbieden!BezichtigingKandidaten nummer 1 t/m 10 worden uitgenodigd voor een bezichtiging op 27 juni 2025. Als u geen uitnodiging heeft ontvangen dan kan u niet komen bezichtigen. Deze datum is onder voorbehoud. U krijgt een notificatie per e-mail als de datum wijzigt.In de buurtOpenbaar vervoer: Treinstation Almere stad op circa 10 minuten loopafstand met trein en busverbindingenScholenWinkelsSupermarktHorecaParken/bosUitvalswegenBetaald parkerenVerzamel alvast uw gegevensKrijgt u een uitnodiging om deze woning te bekijken en wilt u komen kijken? Verzamel dan alvast uw gegevens voor Ymere. Want als u de woning komt bekijken en daarna laat weten dat u deze wilt huren, moet u uw gegevens de volgende werkdag voor 12.00 uur aanleveren. Ook als u niet kandidaat nummer 1 bent levert u de gevraagde documenten in! Kijk op onzewebsiteof in dezefolderwat u moet aanleveren. Levert u uw gegevens niet op tijd aan? Dan krijgt u geen aanbod. U kunt de woning dan niet meer huren.Let er op dat wanneer u de inkomensgegevens niet tijdig kunt overleggen, kan Ymere u de woning weigeren. Zorg er dus voor dat u deze al in uw bezit heeft zodra u op de advertentie reageert.Tot slotBijgevoegde plattegrond geeft een indruk van de woning. Aan de plattegrond/advertentie kunnen geen rechten worden ontleend.

Kaart