Huurwoning Almere

Roemeniëstraat 23, Almere

Korte samenvatting

Locatie
Almere
Huurprijs
€ 775,74
Type woning
Appartement
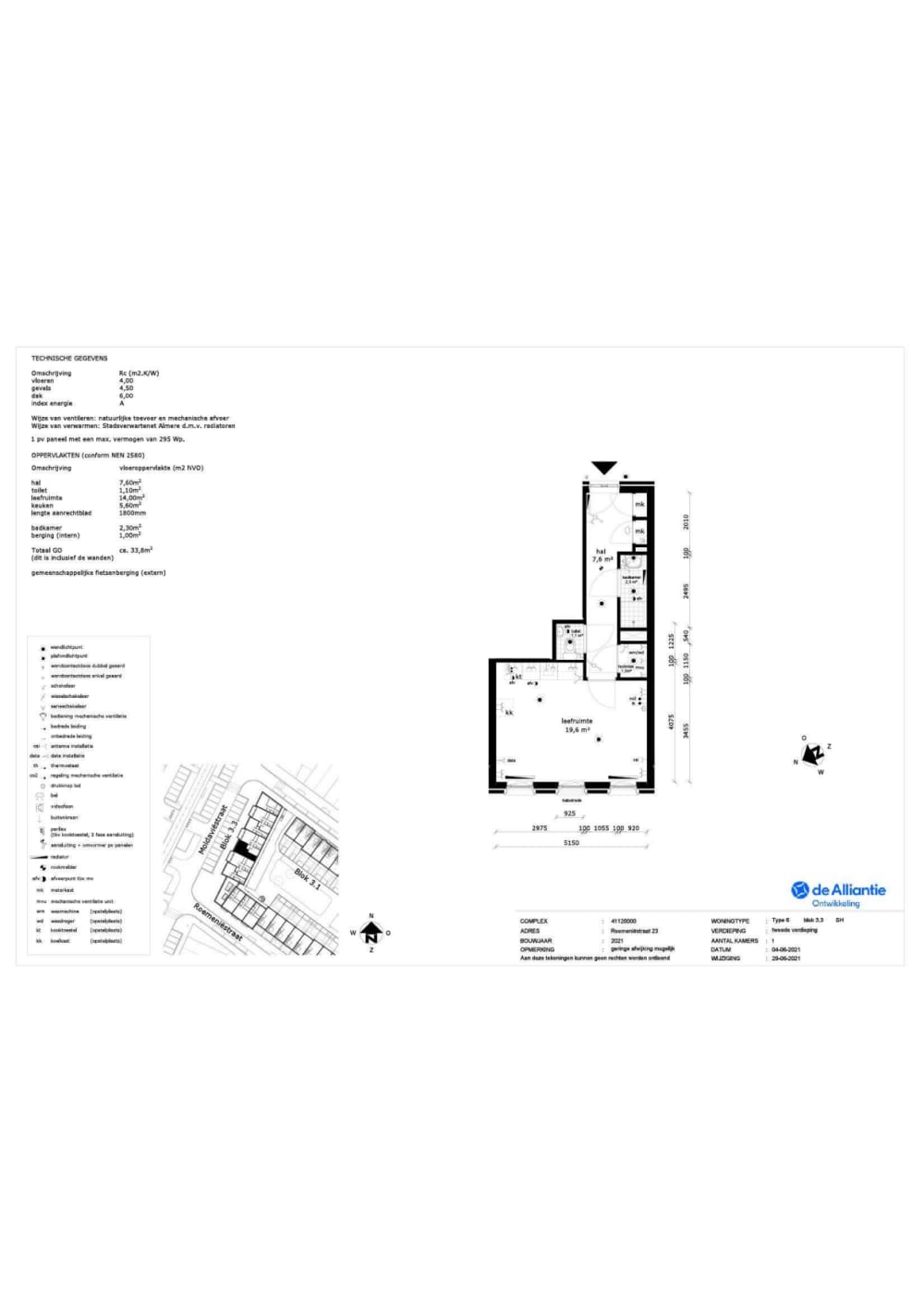
Oppervlakte:
22 m2
Kamers:
1
Slaapkamers:
0
Wachttijd:
(niet ingesteld)
Datum beschikbaar:
3 feb 2026
Maximaal inkomen:
(niet ingesteld)
Status:
Gepubliceerd
Reageren

Omschrijving woning

Deze woning is uitsluitend geschikt voor alleenstaanden.Wij zullen zonder bericht, voordat wij de uitnodigingen sturen voor de bezichtiging, de kandidaten met kinderen maar ook huishoudens bestaande uit 2 personen overslaan.ToewijzingBij het toewijzen van de woning kijken wij of de woning passend is bij de kandidaat.Indien wij vinden dat de woning niet passend is, wordt de woning aan de volgende belangstellende in de rij aangeboden.Wij kijken hier onder andere naar de gezinssamenstelling, leeftijd, de woning, inkomen etc. Zorg dat uw gegevens in DAK kloppen.Maatschappelijke BindingKandidaten met een maatschappelijke binding met Almere krijgen voorrang op deze woning. Wij controleren hier streng op.U heeft een maatschappelijke binding als u:- Minimaal 6 jaar achter elkaar in de gemeente Almere woont, of- In de afgelopen 10 jaar minimaal 6 jaar achter elkaar in de gemeente Almere heeft gewoond.Aan deze advertentie, plattegrond, foto en huurprijzen kunnen geen rechten worden ontleend.

Kaart