Huurwoning Ede

Goudsbloemstraat 3, Ede

Korte samenvatting

Locatie
Ede
Huurprijs
€ 783,56
Type woning
Tussenwoning
Oppervlakte:
80 m2
Kamers:
4
Slaapkamers:
3
Wachttijd:
(niet ingesteld)
Datum beschikbaar:
3 feb 2026
Maximaal inkomen:
(niet ingesteld)
Status:
Gepubliceerd
Reageren

Omschrijving woning

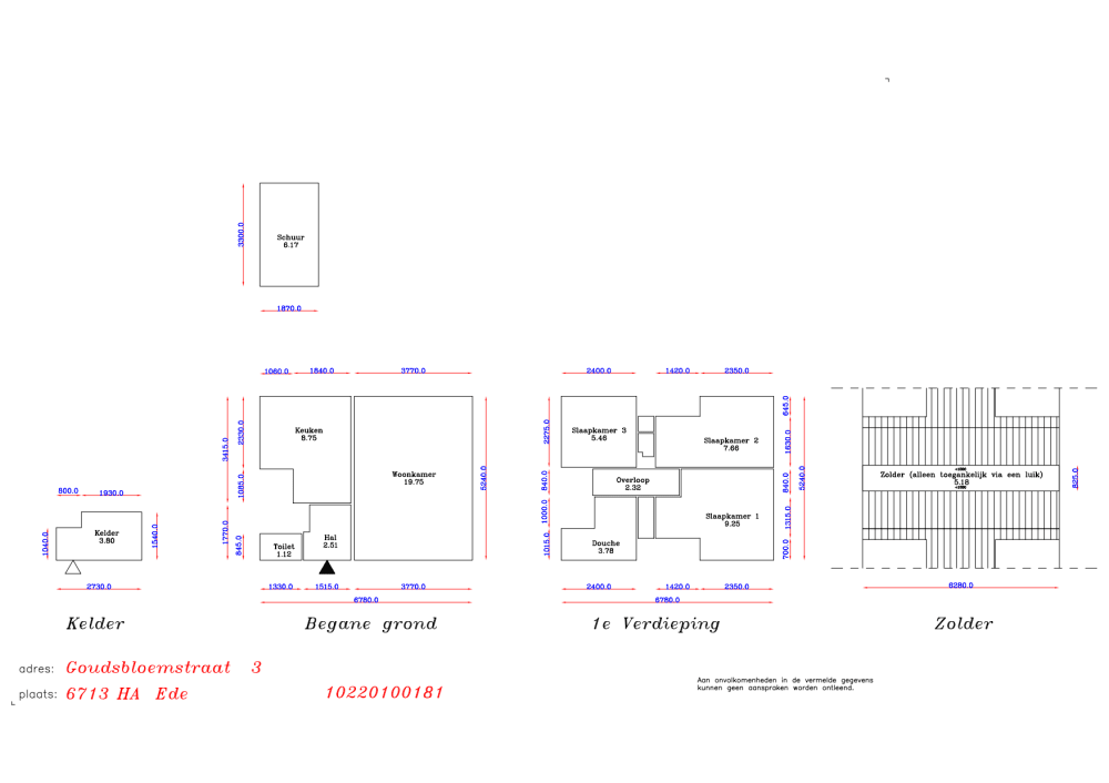
De woningEengezinswoning met 3 slaapkamers. tuinoppervlakte van ongeveer 106 m2.Inkomensverklaring 2024Lever de Inkomensverklaring of definitieve aanslag in van de Belastingdienst van 2024. Deze kunt u online aanvragen bijMijn Belastingdienstof via de Belastingtelefoon 0800-0543.Datum sleutelsWij weten nog niet per wanneer de woning beschikbaar is. Dit is afhankelijk van de werkzaamheden die wij nog in de woning moeten doen. Wordt u de nieuwe huurder? Dan laten we zo snel mogelijk weten wanneer u de sleutels krijgt.PlattegrondGa altijd de woning bekijken voordat u deze gaat huren. Hoe de woning er nu uitziet kan anders zijn dan op de plattegrond.OnderhoudsabonnementU betaalt € 7,26 per maand voor een onderhoudsabonnementElektrisch kokenIn deze woning komt een aansluiting om elektrisch te koken. Dit is standaard een tweefasenaansluiting (Perilex). Het kopen en plaatsen van de kookplaat doet u zelf.Uw nieuwe woningKlikhierom te zien wat u van de woning kunt verwachten als u de nieuwe huurder wordt.Het energielabelVoor nieuwe huurders is het belangrijk om te weten hoe energiezuinig een woning is. Dit kunt u zien op het energielabel. Dit label is tien jaar geldig en wordt vastgesteld door een speciaal bedrijf. Op het energielabel staat een letter of een indexcijfer. De letter A is het meest energiezuinig en de letter G het minst. Voor het indexcijfer geldt; hoe dichter bij de 0, hoe energiezuiniger de woning.Sinds 2021 is de manier hoe het energielabel bepaald wordt, veranderd. Veel energielabels zijn gemaakt voor 2021. Wilt u weten wanneer het energielabel van deze woning gemaakt is? Kijk dan bij de bijlagen in deze advertentie. Daar kunt u het energielabel vinden.

Kaart