Huurwoning Ede

Piet Heinstraat 16, Ede

Korte samenvatting

Locatie
Ede
Huurprijs
€ 798,08
Type woning
Portiekwoning
Oppervlakte:
70 m2
Kamers:
4
Slaapkamers:
3
Wachttijd:
(niet ingesteld)
Datum beschikbaar:
23 jan 2026
Maximaal inkomen:
(niet ingesteld)
Status:
Gepubliceerd
Reageren

Omschrijving woning

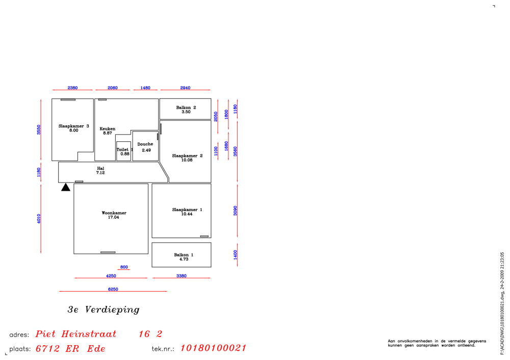
Plannen Piet HeinstraatWe zijn van plan om dit gebouw af te breken en er nieuwe, moderne en duurzame woningen voor terug te bouwen. U kunt in elk geval tot 2028 in uw woning blijven wonen. Als het zover is, kijken we samen met u naar de mogelijkheden voor een andere woning.Wat betekent dit voor u?U kunt deze woning van ons huren. Houd er rekening mee dat u waarschijnlijk in 2028 moet verhuizen. De komende jaren kijken we dan samen met u naar de mogelijkheden voor een andere woning. Een kennismakingsgesprek is onderdeel van de toewijzing.De woningEen driekamer appartement op de eerste verdieping in het centrum van Ede.Datum sleutelsDe woning is op zeer korte termijn beschikbaar. Wij gaan een groepsbezichtiging inplannen. We nodigen een eerste groep kandidaten uit voor de groepsbezichtiging.PlattegrondGa altijd de woning bekijken voordat u deze gaat huren. Hoe de woning er nu uitziet kan anders zijn dan op de plattegrond.OnderhoudsabonnementU betaalt € 7,26 per maand voor eenonderhoudsabonnement.Uw nieuwe woningKlikhierom te zien wat u van de woning kunt verwachten als u de nieuwe huurder wordt.Het energielabelVoor nieuwe huurders is het belangrijk om te weten hoe energiezuinig een woning is. Dit kunt u zien op het energielabel. Dit label is tien jaar geldig en wordt vastgesteld door een speciaal bedrijf. Op het energielabel staat een letter of een indexcijfer. De letter A is het meest energiezuinig en de letter G het minst. Voor het indexcijfer geldt; hoe dichter bij de 0, hoe energiezuiniger de woning.Sinds 2021 is de manier hoe het energielabel bepaald wordt, veranderd. Veel energielabels zijn gemaakt voor 2021. Wilt u weten wanneer het energielabel van deze woning gemaakt is? Kijk dan bij de bijlagen in deze advertentie. Daar kunt u het energielabel vinden.

Kaart