Huurwoning Ede

Weerdestein 265, Ede

Korte samenvatting

Locatie
Ede
Huurprijs
€ 876,73
Type woning
Appartement
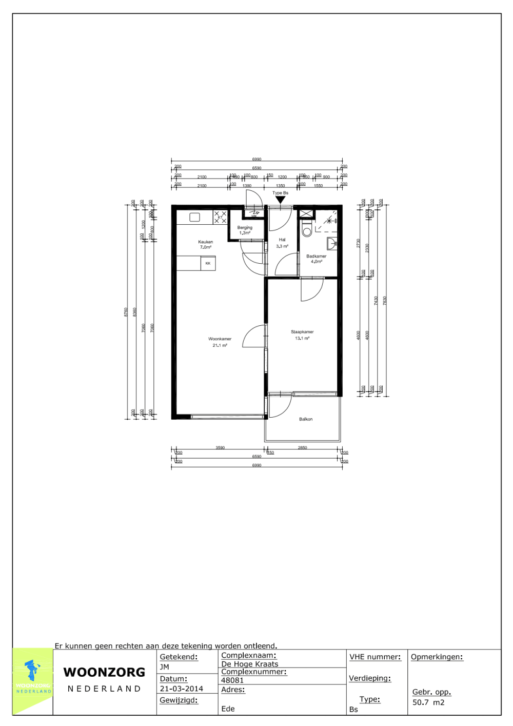
Oppervlakte:
54 m2
Kamers:
2
Slaapkamers:
1
Wachttijd:
(niet ingesteld)
Datum beschikbaar:
31 jan 2026
Maximaal inkomen:
(niet ingesteld)
Status:
Verlopen

Omschrijving woning

Rustig en comfortabel wonenIn De Hoge Kraats is het rustig en comfortabel wonen. Het complex is gelegen aan de rand van een groene en bosrijke omgeving. Vanuit de woningen heeft u een prachtig uitzicht op deze mooie omgeving.Het complex is in 2022 verduurzaamd met o.a. een hybride warmtepomp, CO2-gestuurde ventilatie en LED-verlichting in alle gemeenschappelijke ruimtes. Het complex is verduurzaamd en heeft o.a. een hybride warmtepomp, CO2-gestuurde ventilatie, LED-verlichting in alle gemeenschappelijke ruimtes en een geïsoleerde buitengevel. De woningen hebben energielabel A+Gelijkgestemden in een prettige omgevingIn De Hoge Kraats woont u met gelijkgestemden in een gezellige omgeving. Op de begane grond heeft iedere woning een eigen berging. Ook is er op de begane grond een sfeervolle recreatieruimte aanwezig en er is een aparte ruimte gecreëerd voor het stallen van scootmobiels. Uw auto kunt u parkeren op het eigen terrein.De Hoge Kraats is een prima uitvalsbasis voor activiteiten buitenhuis. Winkelcentrum Bellestein met o.a. supermarkt, apotheek, bakker, drogist en kapper vindt u op ongeveer 700 meter. Buurthuis De Ericahorst bevindt zich 500 meter verderop en een bushalte bevindt zich op 230 meter afstand.Feiten op een rijtje:De Hoge Kraats: Weerdestein 219-373-A, 6714 CR EdeDe woningen zijn speciaal voor 55-plussers79 tweekamerappartementen verdeeld over 10 etagesDe etages zijn zowel met de trap als lift bereikbaarOppervlakte van de woningen is vanaf 55 m2De woningen zijn gelijkvloersVanaf de bovenste verdiepingen heeft u prachtig uitzicht over de omgevingAparte ruimte voor scootmobielsGratis parkeerplaats voor bewoners op eigen terreinElektrisch bedienbare screens voor de ramen in de woonkamerSfeervolle recreatieruimte aanwezigWinkelcentrum Bellestein binnen 700 meterBushalte binnen 230 meterHet gezellige centrum van Ede en het treinstation op ongeveer 1,7 kilometer afstandNB: Een lifestyle gesprek is onderdeel van de toewijzingsprocedure.

Kaart