Huurwoning Lunteren

Boslaan 1, Lunteren

Korte samenvatting

Locatie
Lunteren
Huurprijs
€ 858,51
Type woning
Appartement
Oppervlakte:
74 m2
Kamers:
3
Slaapkamers:
2
Wachttijd:
(niet ingesteld)
Datum beschikbaar:
6 mrt 2025
Maximaal inkomen:
(niet ingesteld)
Status:
Verlopen

Omschrijving woning

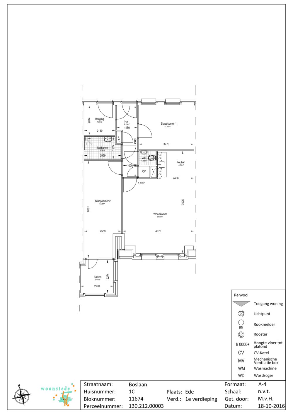
De woningWoongebouw Westhoffhuis. De woning ligt in het centrum.KernbindingWoont of werkt u in Lunteren, kijk danhierof u in aanmerking komt voor kernbinding. Met kernbinding gaat u voor op woningzoekenden die niet in Lunteren wonen of werken. Heeft u binding met Lunteren? Laat het ons weten door te mailen naar:info@woonstede.nlvoordat u op de woning reageert, zodat u op de juiste plek voor deze woning komt.Datum sleutelsWij weten nog niet per wanneer de woning beschikbaar is. Dit is afhankelijk van de werkzaamheden die wij nog in de woning moeten doen. Wordt u de nieuwe huurder? Dan laten we zo snel mogelijk weten wanneer u de sleutels krijgt.PlattegrondGa altijd de woning bekijken voordat u deze gaat huren. Hoe de woning er nu uitziet kan anders zijn dan op de plattegrond.OnderhoudsabonnementU betaalt € 6,05 per maand voor eenonderhoudsabonnement.Elektrisch kokenIn deze woning komt een aansluiting om elektrisch te koken. Dit is standaard een tweefasenaansluiting (Perilex). Het kopen en plaatsen van de kookplaat doet u zelf.Uw nieuwe woningKlikhierom te zien wat u van de woning kunt verwachten als u de nieuwe huurder wordt.Het energielabelVoor nieuwe huurders is het belangrijk om te weten hoe energiezuinig een woning is. Dit kunt u zien op het energielabel. Dit label is tien jaar geldig en wordt vastgesteld door een speciaal bedrijf. Op het energielabel staat een letter of een indexcijfer. De letter A is het meest energiezuinig en de letter G het minst. Voor het indexcijfer geldt; hoe dichter bij de 0, hoe energiezuiniger de woning.Sinds 2021 is de manier hoe het energielabel bepaald wordt, veranderd. Veel energielabels zijn gemaakt voor 2021. Wilt u weten wanneer het energielabel van deze woning gemaakt is? Kijk dan bij de bijlagen in deze advertentie. Daar kunt u het energielabel vinden.

Kaart