Huurwoning Lunteren

Hulakker 56, Lunteren

Korte samenvatting

Locatie
Lunteren
Huurprijs
€ 926,47
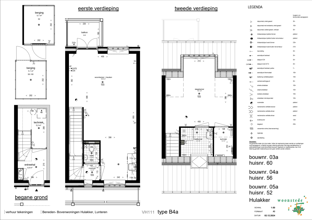
Type woning
Benedenwoning
Oppervlakte:
75 m2
Kamers:
2
Slaapkamers:
1
Wachttijd:
(niet ingesteld)
Datum beschikbaar:
12 feb 2025
Maximaal inkomen:
(niet ingesteld)
Status:
Verlopen

Omschrijving woning

HulakkerIn de nieuwe wijk Hulakker in Lunteren komen 18 sociale huurwoningen. In opdracht van Woonstede bouwt bouwbedrijf NAP hier 6 beneden- en 12 bovenwoningen. Voor meer informatie over het project, klikhier.OpleveringDe woningen worden waarschijnlijk in mei 2025 opgeleverd.OnderhoudsabonnementU betaalt € 6,05 per maand voor eenonderhoudsabonnement.

Kaart