Huurwoning Wageningen

Troelstraweg 64, Wageningen

Korte samenvatting

Locatie
Wageningen
Huurprijs
€ 887,94
Type woning
Appartement
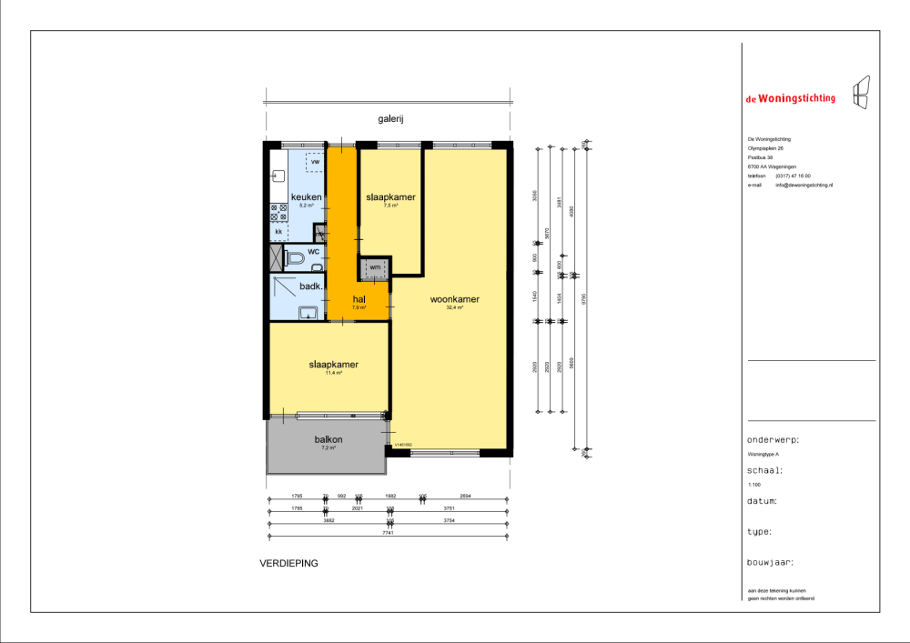
Oppervlakte:
58 m2
Kamers:
3
Slaapkamers:
2
Wachttijd:
(niet ingesteld)
Datum beschikbaar:
29 jan 2025
Maximaal inkomen:
(niet ingesteld)
Status:
Verlopen

Omschrijving woning

Dit appartement ligt in de wijk De Nude. In deze wijk is groot onderhoud uitgevoerd aan de buiten- en de binnenkant. Deze galerijwoning is onderdeel van de flat Troelstraweg 4 t/m 82.  Ligging dichtbij centrum en grote supermarkt.Wat is er vernieuwd/verbeterd aan deze woning?Badkamer, toilet en keukenMechanische ventilatieRadiatoren en leidingwerkGasloos (alleen elektrisch koken)Aparte wasmachinekast in halKozijnen vervangenBalkon vergrootZonnepanelen. Deze zijn geschakeld op uw appartement.  Het gaat om 4 zonnepanelen à € 2,- = € 8,- per maand. Dit bedrag betaalt u maandelijks in de servicekosten.Er is geen boiler meer aanwezig. Hier is een collectief warmwatersysteem voor in de plaats gekomen. Hiervoor betaalt u ook in de servicekosten. Dit bedrag is opgenomen in de verwarmingskosten.Het energielabel is gewijzigd naar AWoning heeft twee slaapkamersEr zijn overnames waaronder vloer in keuken, hal en slaapkamers

Kaart