Huurwoning Appingedam

Uiterdijk 51, Appingedam

Korte samenvatting

Locatie
Appingedam
Huurprijs
€ 656,25
Type woning
Tussenwoning
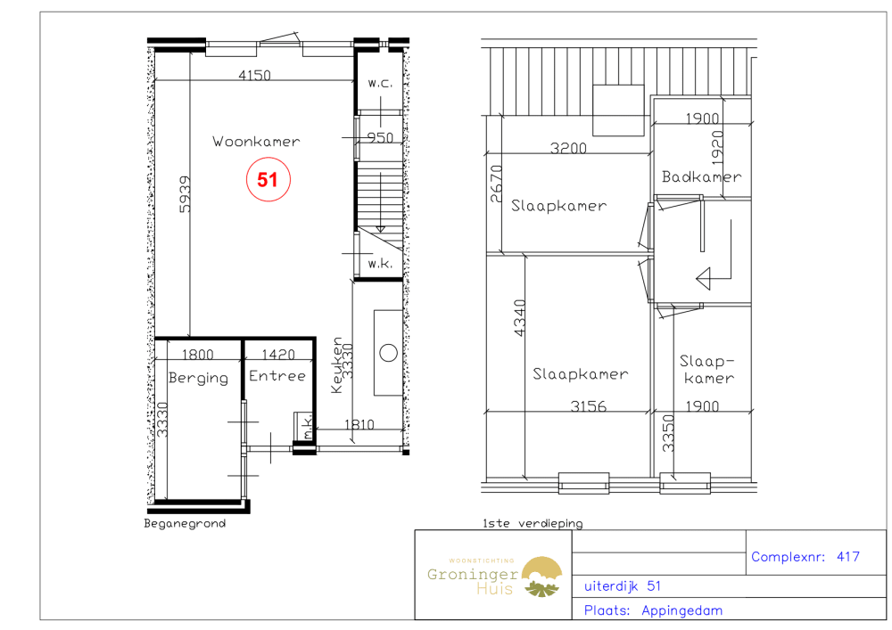
Oppervlakte:
88 m2
Kamers:
4
Slaapkamers:
3
Wachttijd:
(niet ingesteld)
Datum beschikbaar:
14 nov 2025
Maximaal inkomen:
€ 39.055,00
Status:
Verlopen

Omschrijving woning

Tussenwoning met 3 slaapkamers in Appingedam·         Tussenwoning·         Open keuken·         Badkamer en toilet zitten in een aparte ruimte·         U heeft geen bovenburen·         Voortuin·         Achtertuin aan het water·         BergingStaat van de woningWat moet u aan de woning doen?·         Behang- en schilderwerkzaamhedenIn de buurt·         Supermarkt·         Winkelcentrum·         Diverse horeca gelegenheden·         Betaald/gratis parkeren

Kaart