Huurwoning Bedum

Burchtstraat 1I, Bedum

Korte samenvatting

Locatie
Bedum
Huurprijs
€ 716,51
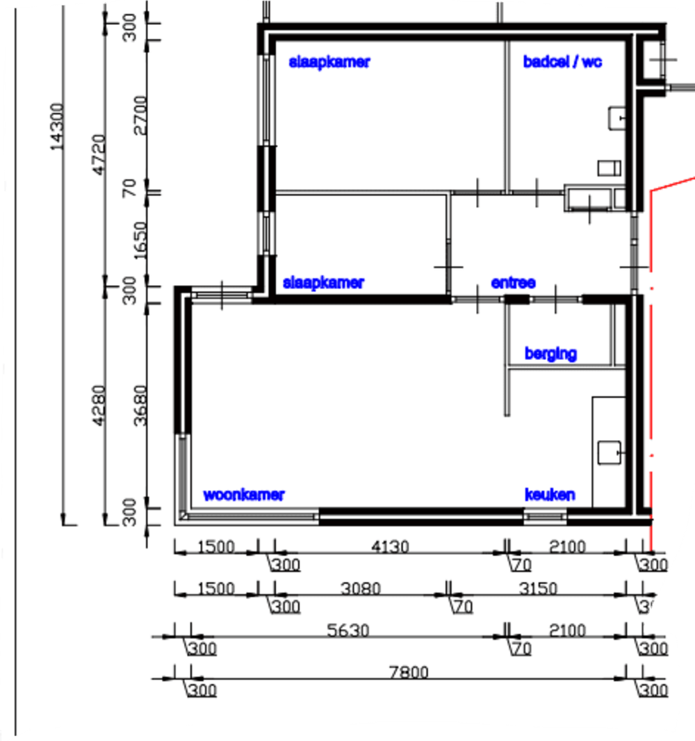
Type woning
Appartement
Oppervlakte:
47 m2
Kamers:
3
Slaapkamers:
2
Wachttijd:
(niet ingesteld)
Datum beschikbaar:
31 jul 2025
Maximaal inkomen:
€ 39.055,00
Status:
Verlopen

Omschrijving woning

Betreft: Senioren appartement met twee slaapkamers. Het appartement is gelegen op de tweede etage.Eventuele overname is te bespreken met de vertrekkende huurder.Minimaal inkomen voor deze woning:• geen eisenMaximaal inkomen voor deze woning (dit geldt niet voor wijkvernieuwingsurgenties en rolstoelindicaties):• Voor 1 persoon € 49.669,-• Voor 2 of meer personen € 54.847,-Meer algemene informatie over inkomensregels vindt uhier.

Kaart