Huurwoning Groningen

Mast 14, Groningen

Korte samenvatting

Locatie
Groningen
Huurprijs
€ 693,29
Type woning
Tussenwoning
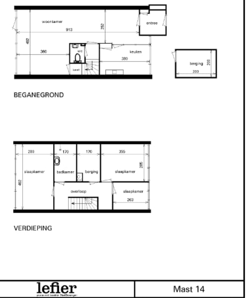
Oppervlakte:
78 m2
Kamers:
4
Slaapkamers:
3
Wachttijd:
(niet ingesteld)
Datum beschikbaar:
1 jan 2023
Maximaal inkomen:
€ 39.055,00
Status:
Verlopen

Omschrijving woning

Algemeen Grondgebonden eengezinswoning. De te huur per datum is onder voorbehoud. Keuken, badkamer en toilet De keuken, de badkamer en het toilet zijn niet origineel. Dit houdt in dat wanneer er een reparatie gedaan moet worden Lefier kan beslissen dat deze in originele staat teruggebracht kan worden. Inkomenstoets Minimaal inkomen voor deze woning: Voor 1 persoon: 25.475,- Voor 1 persoon met AOW: 25.075,- Voor 2 personen (inclusief inwonend kind): 34.575,- Voor 2 personen met AOW: 33.800,- Voor 3 of meer personen (inclusief inwonende kinderen): geen eisen Maximaal inkomen voor deze woning (dit geldt niet voor wijkvernieuwingsurgenties en rolstoelurgenties): Voor 1 persoon 44.035,- Voor 2 of meer personen 48.625,- Huishoudsamenstelling Geschikt voor 4 personen waarvan maximaal 2 volwassenen. Parkeren Voor informatie over parkeren in de wijk kunt u kijken op de website van de gemeente Groningen. Voorwaarden: Om in aanmerking te komen voor deze woning moet u een aantal documenten aanleveren. Als u de woning krijgt aangeboden, ontvangt u hier meer informatie over. De voorwaarden zijn: Uw inkomen voldoet aan de regels van Passend toewijzen en toont u aan met een inkomensverklaring van de Belastingdienst; Een goede verhuurdersverklaring, mogelijk aangevuld met een Uittreksel Basisregistratie Personen (BRP); Uittreksel Basisregistratie Personen (BRP) als u op dit moment geen woning huurt. Of als u nu geen woning van een corporatie in de gemeente Groningen huurt n geen verhuurdersverklaring(en) tot minimaal 5 jaar terug kunt aanleveren; Eventuele ingevulde woonduur op uw inschrijving moet juist zijn; Als u onder bewindvoering of curatele staat een akkoordverklaring van uw bewindvoerder/curator.

Kaart