Huurwoning Groningen

Veldspaatstraat 302, Groningen

Korte samenvatting

Locatie
Groningen
Huurprijs
€ 722,39
Type woning
Appartement
Oppervlakte:
85 m2
Kamers:
3
Slaapkamers:
2
Wachttijd:
(niet ingesteld)
Datum beschikbaar:
25 sep 2025
Maximaal inkomen:
€ 39.055,00
Status:
Verlopen

Omschrijving woning

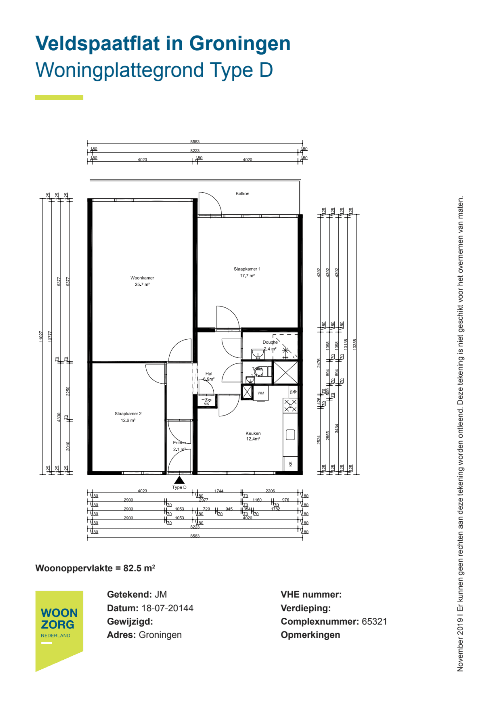
Alles in de buurtAppartementencomplex Veldspaatflat ligt in het westen van de stad Groningen, in de leuke wijk Vinkhuizen. Het is een levendige groene omgeving.Op ongeveer 500 meter afstand vindt u onder andere een supermarkt, een bakker, een drogist en een apotheek. Ook is er iedere week markt.Wonen in een prettige omgevingIn de Veldspaatflat heeft u de privacy en geborgenheid van uw eigen woning. Daarnaast kunt u gebruik maken van de faciliteiten van het naastgelegen verzorgingshuis Dignis. Wilt u andere mensen ontmoeten of genieten van een maaltijd of drankje dan kunt u terecht in het (wijk) restaurant van Dignis. Ook worden er diverse activiteiten georganiseerd zoals bingo, klassiek uurtje, sjoelen, kaarten en muziekoptredens.Appartementen VeldspaatflatHet appartement beschikt over een woonkamer, woonkeuken, doucheruimte, aparte toiletruimte, slaapkamer en een tweede slaapkamer. Het appartement beschikt over een eigen berging beneden in het complex.Verduurzaming flatUw woning is in 2025 verduurzaamd. Daarbij is uw woning voorzien van:Een nieuw CO2 ventilatiesysteemNieuwe ramenNieuw hang en sluitwerkDe kozijnen zijn geverfdDe wanden zijn aan de buitenzijde van de woning geïsoleerdDe werkzaamheden binnen in de woning zijn gereed. Aan de buitenkant kan het zijn dat er nog wat werkzaamheden verricht moeten worden. Het kan zijn dat u hiervan nog enige overlast ervaart.Als u in aanmerking komt, wordt u uitgenodigd voor de bezichtiging. Deze zal plaatsvinden opwoensdag 8 oktober van 15.00 – 16.00 uur.Uitgenodigde kunnen aanbellen bij nr. 302.

Kaart