Huurwoning Hoogezand

Cartonbaan 22, Hoogezand

Korte samenvatting

Locatie
Hoogezand
Huurprijs
€ 758,48
Type woning
Appartement
Oppervlakte:
65 m2
Kamers:
2
Slaapkamers:
1
Wachttijd:
(niet ingesteld)
Datum beschikbaar:
15 dec 2025
Maximaal inkomen:
(niet ingesteld)
Status:
Verlopen

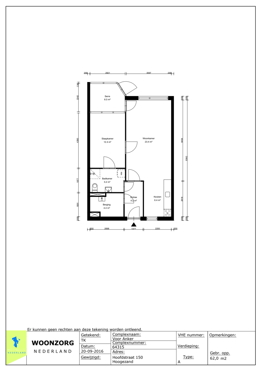
Omschrijving woning

Een prachtig appartement met een mooie nette vloer. De woning is gelegen op de begane grond met uitzicht op de gemeenschappelijke tuin. Het is heerlijk om de ramen te openen en in uw serre of op uw terras aan de warmte te ontsnappen. De tuingerichte woningen zijn gelegen op het noordwesten. Met het uitzicht op de Hooiteslaan geniet u bijna de hele dag van de zon. Deze appartementen zijn gericht op het zuidoosten.Het appartement is ongeveer 62m2. Alles is gelijkvloers met brede deuren en zonder drempels. Onlangs is het gebouw verduurzaamd. Er zijn o.a. nieuwe isolatie, HR++ ramen en zonnepanelen geplaatst. De indeling is als volgt: hal/entree, ruime woonkamer met open keuken, serre, 1 slaapkamer, badkamer met toilet en een inpandige berging.Via de beveiligde hoofdentree komt u het gebouw binnen. De aanleunwoningen zijn inpandig verbonden met de woonzorglocatie Voor Anker. Zorgorganisatie TSN biedt een ruim aanbod diensten en thuiszorg waar u als bewoner gebruik van kunt maken. Ook kunt u eten in het restaurant en deelnemen aan verschillende activiteiten die dagelijks worden aangeboden. Er is een winkeltje voor kleine boodschappen. Daarnaast is er wekelijks een fysiotherapeut, pedicure en kapster aanwezig.De woonzorglocatie wordt op dit moment verbouwd. Daardoor zijn alle voorzieningen tijdelijk verhuist naar Slochteren. Elk uur gaat er een busje van TSN heen en weer tussen de tijdelijke locatie in Slochteren en de appartementen aan de Cartonbaan. Hier kunt u als bewoner gratis gebruik van maken. Wel is TSN dagelijks in Hoogezand aanwezig voor het leveren van thuiszorg en het bezorgen van maaltijden aan verschillende bewoners. Medio 2026 is de verbouwing klaar en verhuist TSN weer terug.De woning heeft gunstige ligging in Hoogezand. Er is een groot winkelcentrum met meer dan 100 winkels binnen 5 minuten bereikbaar. Ook bevinden zich een aantal kleine winkels zoals een supermarkt op loopafstand.  De bushalte bereikt u binnen 200 meter. U woont vlak bij de uitvalswegen naar Groningen, Zuidbroek, Veendam en Scheemda.Let op: de scootmobiel stalling is op dit moment vol. Uiteraard is het mogelijk u in te schrijven op de wachtlijst voor een plek in deze stalling.

Kaart