Huurwoning Loppersum

Bessentuin 32, Loppersum

Korte samenvatting

Locatie
Loppersum
Huurprijs
€ 687,39
Type woning
Tussenwoning
Oppervlakte:
58 m2
Kamers:
3
Slaapkamers:
2
Wachttijd:
(niet ingesteld)
Datum beschikbaar:
7 apr 2025
Maximaal inkomen:
€ 39.055,00
Status:
Verlopen

Omschrijving woning

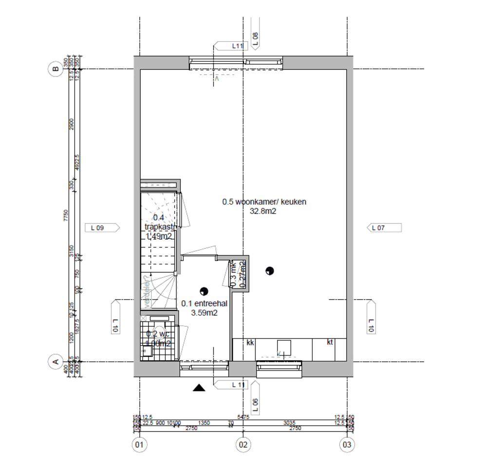
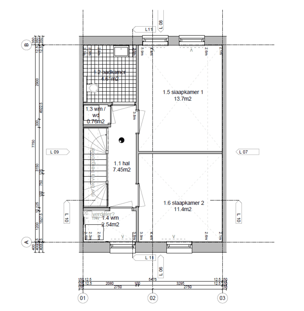
Algemene informatie en faciliteitenWierden en Borgen heeft de afgelopen periode meerdere nieuwe woningen (fase 4) gebouwd in Loppersum. Deze woning is de laatste van 5 die beschikbaar komt voor de reguliere verhuur.Informatie over de woningBetreft: Bessentuin 32 – Type gezinswoning klein. Het gaat hier om een woning met twee slaapkamers.De woningen hebben een energielabel van A+++. Op de begane grond is een woonkamer met keuken, hal en een dichte trap naar de eerste verdieping met een trapkast. Op de eerste verdieping zijn twee slaapkamers en badkamer met toilet gerealiseerd. In de bergruimte staat de luchtwarmtepomp. Er is een vlizotrap naar de zolder.InstallatiesDe woningen zijn gasloos gebouwd. Ze zijn voorzien van vloerverwarming. Op het dak zijn zonnepanelen aangebracht. In de keuken is een perilex aansluiting aanwezig voor de elektrische kookplaat. Dit is een aansluiting met twee fasen. Een vaatwasser aansluiting is aanwezig in het keukenblok voor een installatie naast het blok. In de keuken zit een recirculatiekap. In de slaapkamers en achter het keukenblok zitten loze leidingen. Hier kunt u bijvoorbeeld een elektra- of internetkabel doorheen trekken.Afwerking en investering als eerste bewoner(s)Wierden en Borgen levert de wanden op in het renovlies inclusief witte verflaag. U bent de eerste bewoner wat betekent dat u de woning naar eigen smaak kan inrichten. De vloeren zijn klaar om vloerbedekking op te leggen, breng wel eerst een ondervloer aan. Een PVC vloer is ook mogelijk maar dan dient de vloer eerst geëgaliseerd te worden. Houd wel rekening met een initiële grotere investering in vloeren en afwerking van de tuin als eerste bewoner(s).Buitenruimtes (voor- en achtertuin)De woningen worden opgeleverd met een looppad naar zowel de voor-als achterdeur. Aan de voorzijde van de woning zullen er heggen geplaatst worden. De woning beschikt over een tuin welke opgeleverd wordt in de huidige staat. Aan de voorzijde van de woningen worden aan de openbare weg door de gemeente gemeenschappelijke parkeerplaatsen gerealiseerd voor de woningen.GroenplanWierden en Borgen realiseert aan de voorzijde van de woningen heggen zoals gemeld. Het groenonderhoud hiervan is de verantwoordelijkheid van de huurder. U gaat wonen in een nieuwbouwcomplex waar de gemeente eisen heeft gesteld aan de inrichting en uitstraling van de voortuinen. Wij hechten waarde aan de beeldvorming van het terrein en het instant houden hiervan. Daarom is het niet toegestaan om deze heggen te verwijderen om schermen noch schuttingen te plaatsen in de voor- en zijtuinen.Minimaal inkomen voor deze woning:• geen eisenMaximaal inkomen voor deze woning (dit geldt niet voor wijkvernieuwingsurgenties en rolstoelindicaties):• Voor 1 persoon € 49.669,-• Voor 2 of meer personen € 54.847,-Meer algemene informatie over inkomensregels vind jehier.BELANGRIJKE INFORMATIEDe woningen zijn gereed voor de verhuur. Houd u rekening met een snelle inhuurdatum na de bezichtiging.Bij het accepteren van de woning gaat u akkoord met deze voorwaarden m.b.t. het groenplan.

Kaart