Huurwoning Sauwerd

Hoogpad 11, Sauwerd

Korte samenvatting

Locatie
Sauwerd
Huurprijs
€ 704,46
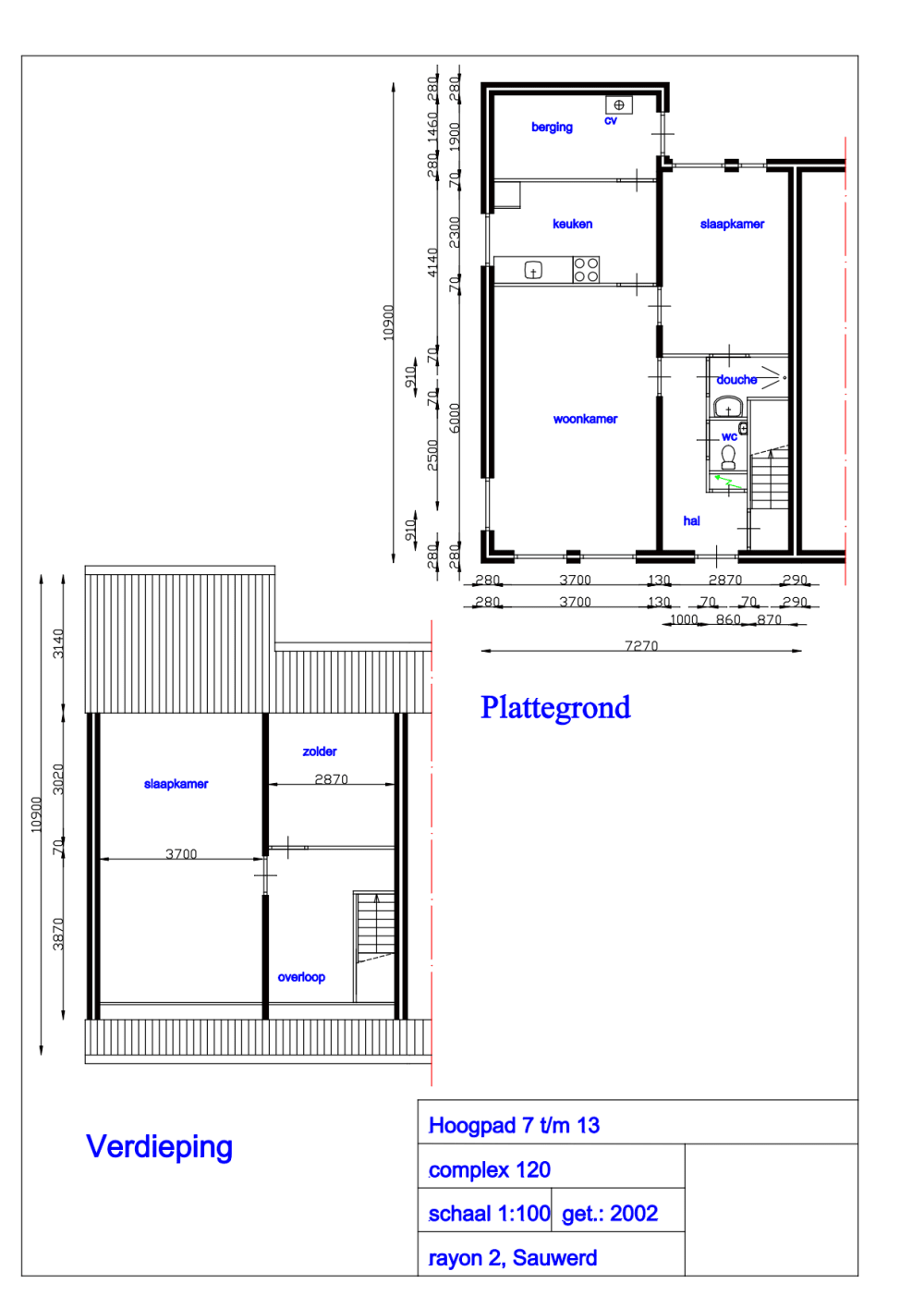
Type woning
Tussenwoning
Oppervlakte:
66 m2
Kamers:
3
Slaapkamers:
2
Wachttijd:
(niet ingesteld)
Datum beschikbaar:
20 mei 2025
Maximaal inkomen:
€ 39.055,00
Status:
Verlopen

Omschrijving woning

Betreft: een seniorenwoning met alle voorzieningen op de begane grond en een extra bergruimte en slaapkamer op de verdieping. De woning heeft een vrij uitzicht maar heeft een diepe tuin die vraagt om een huurder met groene vingers.Minimaal inkomen voor deze woning:• geen eisenMaximaal inkomen voor deze woning (dit geldt niet voor wijkvernieuwingsurgenties en rolstoelindicaties):• Voor 1 persoon € 49.669,-• Voor 2 of meer personen € 54.847,-Meer algemene informatie over inkomensregels vindt uhier.

Kaart