Huurwoning Scheemda

Hogeweg 77, Scheemda

Korte samenvatting

Locatie
Scheemda
Huurprijs
€ 777,78
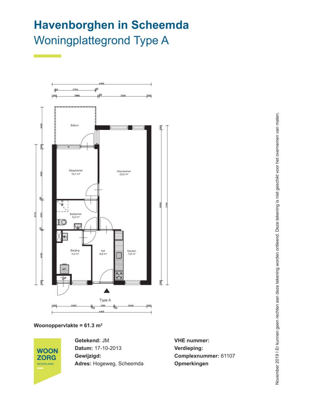
Type woning
Appartement
Oppervlakte:
64 m2
Kamers:
2
Slaapkamers:
1
Wachttijd:
(niet ingesteld)
Datum beschikbaar:
6 mrt 2026
Maximaal inkomen:
(niet ingesteld)
Status:
Gepubliceerd
Reageren

Omschrijving woning

Havenborghen ligt aan het Oude Winschoterdiep in Scheemda, op ongeveer 100 meter van het centrum. Het complex bevindt zich in een historische omgeving met boerderijen en dorpen en heeft een hoog voorzieningenniveau. Winkels, horeca en het station van Scheemda zijn dichtbij, evenals de rijksweg A7 en de spooraansluiting naar Groningen, Winschoten en Nieuweschans.Het complex is bestemd voor 55-plussers en biedt sociale huurwoningen. Bewoners kunnen gebruikmaken van een gezamenlijke tuin, een inpandige fietsenberging en een externe halfopen fietsenberging. Alle etages zijn bereikbaar met trap en lift.Deze woning is gelegen aan de straatzijde.

Kaart