Huurwoning Scheemda

Oude Rijksweg 96A, Scheemda

Korte samenvatting

Locatie
Scheemda
Huurprijs
€ 819,22
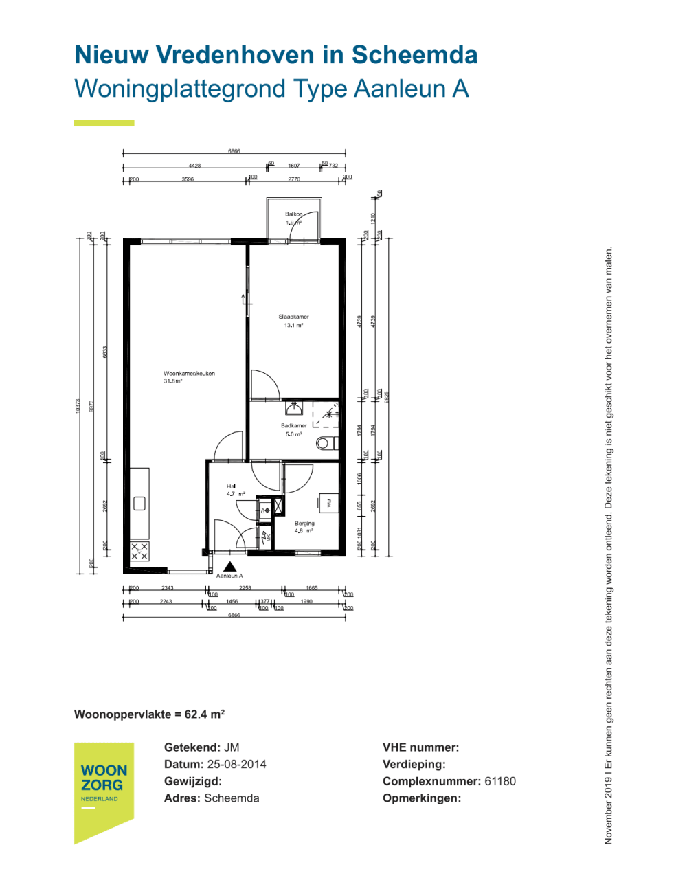
Type woning
Appartement
Oppervlakte:
70 m2
Kamers:
2
Slaapkamers:
1
Wachttijd:
(niet ingesteld)
Datum beschikbaar:
17 apr 2026
Maximaal inkomen:
(niet ingesteld)
Status:
Verlopen

Omschrijving woning

De gemeente Oldambt is rijk aan historisch waardevolle gebouwen en rustieke dorpen, waaronder het dorp Scheemda met ca. 5.000 inwoners. Het voorzieningenniveau in de gemeente staat op hoog peil. Er is een grote diversiteit aan winkels. Scheemda is gelegen aan de hoofdverbinding door Oost-Groningen namelijk de rijksweg A7 en het heeft een spooraansluiting met een halfuurdienst naar Groningen, Winschoten en Nieuweschans.Waarom wilt u hier wonen?Algemene fietsenbergingVoorzieningen op loopafstandUitzicht op hertenkamp of kanaalParkeergelegenheid voor bewoners op eigen terreinSupermarkt op loopafstandMen kan gebruik maken van de faciliteiten van het zorgcentrum OosterlengteWoning gelegen op eerste verdieping: uitkijkend kanaalzijdeOvername: laminaatvloerDe bewonersconsulent is het aanspreekpunt voor alle huurders. Deze persoon maakt u wegwijs in uw nieuwe woonomgeving en ziet erop toe dat u prettig en rustig woont.

Kaart