Huurwoning Ten Boer

A.H. Homanstraat 17, Ten Boer

Korte samenvatting

Locatie
Ten Boer
Huurprijs
€ 937,36
Type woning
Tussenwoning
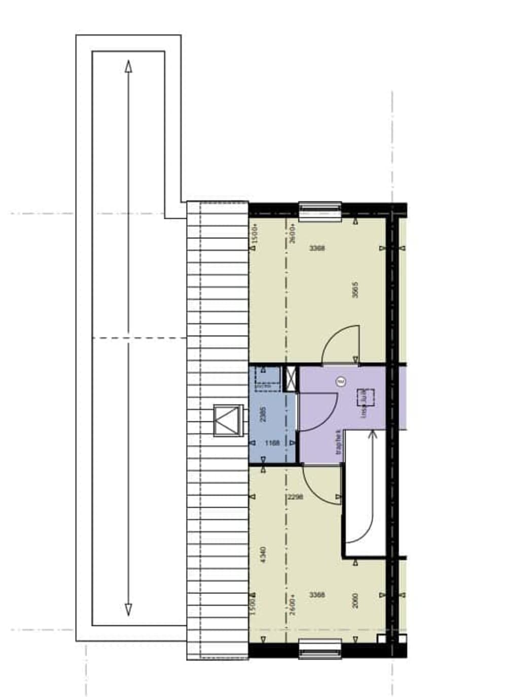
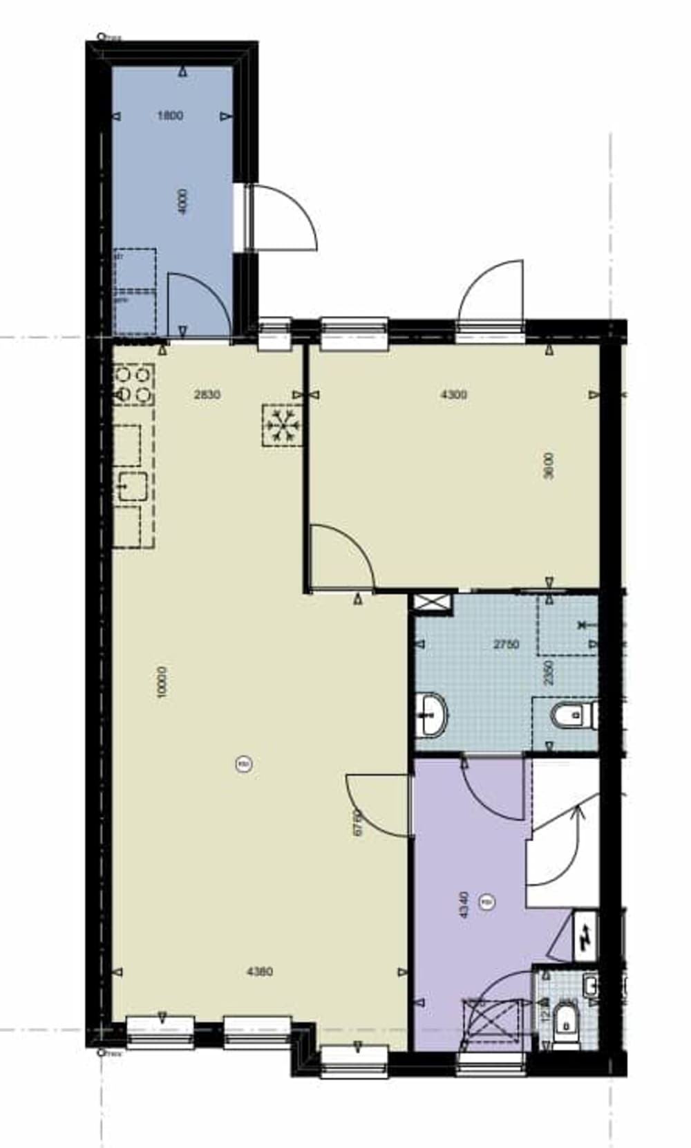
Oppervlakte:
87 m2
Kamers:
4
Slaapkamers:
3
Wachttijd:
(niet ingesteld)
Datum beschikbaar:
23 apr 2026
Maximaal inkomen:
(niet ingesteld)
Status:
Verlopen

Omschrijving woning

Betreft: hoekwoning met drie slaapkamers. 1 slaapkamer bevindt zich op de begane grond.Minimaal inkomen voor deze woning:• Voor 1 persoon: € 29.400,-• Voor 1 persoon met AOW: € 28.775,-• Voor 2 of meer personen (inclusief inwonende kinderen): € 39.925,-• Voor 2 of meer personen met AOW: € 38.650,-Maximaal inkomen voor deze woning (dit geldt niet voor wijkvernieuwingsurgenties en rolstoelindicaties):• Voor 1 persoon € 51.537,-• Voor 2 of meer personen € 56.910,-Meer algemene informatie over inkomensregels vind jehier.

Kaart