Huurwoning Ulrum

H. de Cockstraat 6, Ulrum

Korte samenvatting

Locatie
Ulrum
Huurprijs
€ 658,66
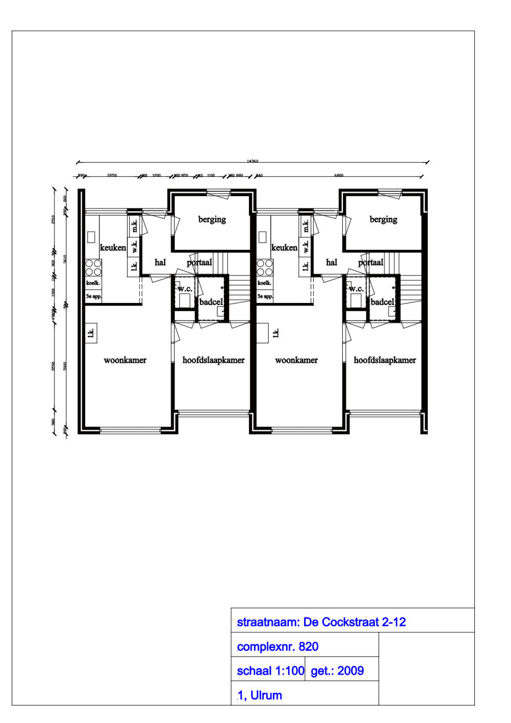
Type woning
Hoekwoning
Oppervlakte:
53 m2
Kamers:
3
Slaapkamers:
2
Wachttijd:
(niet ingesteld)
Datum beschikbaar:
10 mrt 2025
Maximaal inkomen:
€ 39.055,00
Status:
Verlopen

Omschrijving woning

Betreft: een op de hoek gelegen seniorenwoning met alle voorzieningen op de begane grond en een extra slaapkamer en een zolder op de verdieping. De woning ligt in het rustige gedeelte van Ulrum.Het grasveld naast de woning wordt onderhouden door Wierden en Borgen.In deze woning is aardbevingsschade geconstateerd. Dit proberen wij te herstellen voor de woning opnieuw wordt verhuurd. In de vertrekken waar schade is geconstateerd wordt het behang verwijderd. Deze vertrekken worden, na het herstellen van de aardbevingsschade, behangklaar aan de nieuwe huurder opgeleverd. Let op: De genoemde verhuurdatum is voorlopig en kan wijzigen.Minimaal inkomen voor deze woning:• geen eisenMaximaal inkomen voor deze woning (dit geldt niet voor wijkvernieuwingsurgenties en rolstoelindicaties):• Voor 1 persoon € 49.669,-• Voor 2 of meer personen € 54.847,-Meer algemene informatie over inkomensregels vindt uhier.

Kaart