Huurwoning Maastricht

Baron de Selysstraat 7, Maastricht

Korte samenvatting

Locatie
Maastricht
Huurprijs
€ 731,93
Type woning
Tussenwoning
Oppervlakte:
60 m2
Kamers:
4
Slaapkamers:
3
Wachttijd:
(niet ingesteld)
Datum beschikbaar:
27 sep 2025
Maximaal inkomen:
€ 39.055,00
Status:
Verlopen

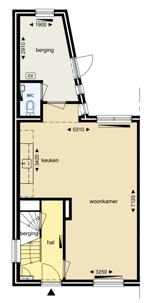
Omschrijving woning

De eengezinswoning is gelegen in de Baron de Selysstraat in Maastricht. Binnenkomst via de hal met toegang tot de doorzon woonkamer met open keuken. Via de woonkamer is de inpandige berging bereikbaar. Vanuit de inpandige berging is de tuin toegankelijk. Op de verdieping liggen drie slaapkamers en de badkamer. De badkamer bestaat uit een douche en wastafel. Er is een zolderberging aanwezig en een berging in de tuin. Mogelijke overnames tegen vergoeding aan de vorige bewoner: Alle aanwezige raambekleding, vloeren en lampen, rolluiken bovenverdieping voorzijde, vloerbedekking trap, rekjes in de kelder en keuken, overkapping in tuin en bij de berging, zonnescherm voorzijde. _Wilt u in aanmerking komen voor deze woning? Zorg dan dat u de volgende gegevens heeft ge pload naar uw inschrijving bij Thuis in Limburg:_ * _Inkomstenverklaring over 2023 of 2024 van de Belastingdienst (ook indien eigen bedrijf!); de meest recente is te downloaden via_[ __www.belastingdienst.nl__](https://eur03.safelinks.protection.outlook.com/?url=http%3A%2F%2Fwww.belastingdienst.nl%2F&data=05%7C02%7Ccentraleplanning%40woonpunt.nl%7C357af9b9e144454feba108ddaa46c439%7C95a8d37e25b4448587e9e53389477c1b%7C0%7C0%7C638853943109533015%7CUnknown%7CTWFpbGZsb3d8eyJFbXB0eU1hcGkiOnRydWUsIlYiOiIwLjAuMDAwMCIsIlAiOiJXaW4zMiIsIkFOIjoiTWFpbCIsIldUIjoyfQ%3D%3D%7C0%7C%7C%7C&sdata=TZtmyHmxJgbynNxyyaAFoyXWRXLubsUYA1h%2FMXIWB8c%3D&reserved=0) _of via 0800-0543 op te vragen (vanaf 1 maart 2025 kunt u aangifte doen over 2024)._ * _Recente salarisstroken van de laatste 3 maanden of een recente (AOW)uitkeringsspecificatie en indien van toepassing een recente pensioenspecificatie._ * _Uittreksel BRP (Basis Registratie Personen) dat niet ouder is dan 6 maanden en waarop uw adreshistorie is te zien. Dit kunt u (online) aanvragen bij uw Gemeente. Als u huurder bent van Woonpunt, hoeft u dit niet aan te leveren._ * _Een recente verhuurdersverklaring van uw huidige verhuurder (of als u momenteel inwoont, van uw laatst gehuurde woning), waaruit blijkt dat u de maandelijkse huur op tijd betaalt en geen overlast veroorzaakt. Als u al huurder bent van Woonpunt f als u nog thuis bij uw ouders woont, hoeft u dit niet aan te leveren._ * _Kunt u geen recente verhuurdersverklaring aanleveren van uw huidige of vorige verhuurder? Dan voegt u een duidelijke en geloofwaardige verklaring toe, waarom dat niet mogelijk is._ * _Heeft u een koopwoning? Dan ontvangen wij graag een recente hypotheekverklaring. Heeft u uw koopwoning recent verkocht? Dan ontvangen wij graag een verkoopovereenkomst van de verkochte woning._ * _Akkoord verhuizing van uw bewindvoerder en/of uw budgetbeheer (indien van toepassing)._ _**_Maak uw BSN-nummer overal onleesbaar voordat onderstaande bestanden gaat uploaden_**_ _**Let op: Als u niet op tijd alle documenten heeft ge pload, slaan wij u over voor deze woning.**_ _**Belangrijk**_ _Als u niet aan onderstaande voorwaarden voldoet, dan heeft Woonpunt het recht u deze woning te weigeren:_ * _Als uw inkomen en/of gezinssamenstelling niet passend wordt bevonden;_ * _U niet op tijd alle documenten ge pload heeft;_ * _U huurachterstand heeft of overlast veroorzaakt bij uw huidige verhuurder._ _Aan deze advertentie kunnen geen rechten worden ontleend._

Kaart