Huurwoning Tilburg

IJskelderstraat 96, Tilburg

Korte samenvatting

Locatie
Tilburg
Huurprijs
€ 694,28
Type woning
Eengezinswoning
Oppervlakte:
(niet ingesteld)
Kamers:
3
Slaapkamers:
2
Wachttijd:
(niet ingesteld)
Datum beschikbaar:
25 jan 2022
Maximaal inkomen:
€ 39.055,00
Status:
Verlopen

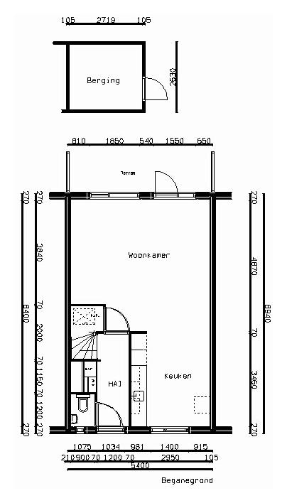
Omschrijving woning

**Redenen om hier te wonen** * woning met tuin * tuin op het zuiden * speelgelegenheid in de buurt * eigen berging * achterom te bereiken **Belangrijk om te weten** Woning ligt in gezellig volkswijk. Er zijn veel actieve vrijwilligers die vanuit het Huis van de Wijk hun werk doen samen met de wijkraad en de gemeente. **(Belangrijkste) zaken ter overname** nog niet bekend

Kaart