Huurwoning Tilburg

Kwendelhof 144, Tilburg

Korte samenvatting

Locatie
Tilburg
Huurprijs
€ 633,25
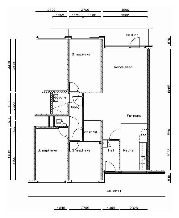
Type woning
Appartement
Oppervlakte:
(niet ingesteld)
Kamers:
4
Slaapkamers:
3
Wachttijd:
(niet ingesteld)
Datum beschikbaar:
4 apr 2022
Maximaal inkomen:
€ 39.055,00
Status:
Verlopen

Omschrijving woning

**Redenen om hier te wonen** \- Ruim appartement \- Het appartement is net gerenoveerd \- Openbaar vervoer voor de deur \- Diverse winkels op 10 minuten lopen \- parkeren voor de flat **Belangrijk om te weten** \- koken is op elektra \- individueel waterverbruik betaalt u via de servicekosten en is dus bij de huur inbegrepen. U dient zich alleen nog aan te melden bij Brabant Water voor de belastingen. \- appartement wordt uitsluitend verhuurd aan 55 plussers **(Belangrijkste) zaken ter overname** \- parketvloer -laminaat -gordijnen -screen

Kaart