Huurwoning Tilburg

Pater van Den Elsenplein 14, Tilburg

Korte samenvatting

Locatie
Tilburg
Huurprijs
€ 693,60
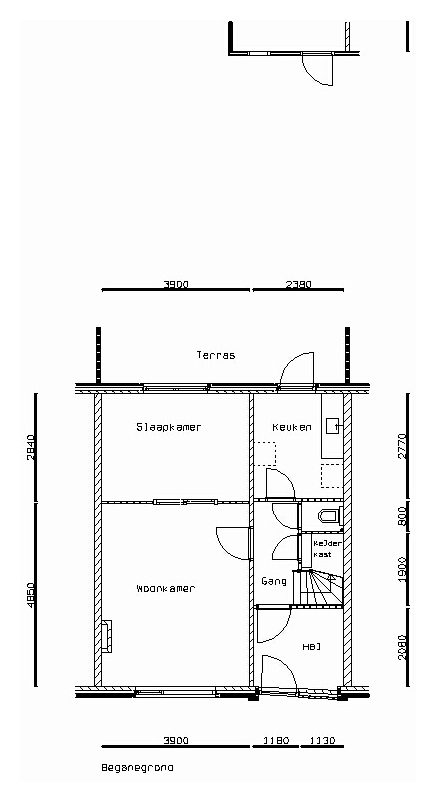
Type woning
Eengezinswoning
Oppervlakte:
(niet ingesteld)
Kamers:
5
Slaapkamers:
4
Wachttijd:
(niet ingesteld)
Datum beschikbaar:
14 apr 2023
Maximaal inkomen:
€ 39.055,00
Status:
Verlopen

Omschrijving woning

* **Selectieve woningtoewijzing** In Groenewoud werken gemeente, politie en woningcorporaties samen om uw buurt sterk en leefbaar te houden. Dat doen we op allerlei manieren. Daar waar het kan, helpen we bewoners die meer zorg nodig hebben. En we pakken bewoners aan die crimineel gedrag tonen of overlast veroorzaken. Om de balans in de buurt te herstellen, wil de gemeente het mogelijk maken om huurwoningen selectief toe te kunnen wijzen in delen van Groenewoud. Het gaat hierbij om het Monte Cristallo-complex in de Dolomietenlaan, delen van de Korhoenstraat, de Visserijbuurt (inclusief het Pater van den Elsenplein), de Landbouwbuurt en de Stoeterijstraat en omliggende straten. De straten waar we selectieve woningtoewijzing willen gaan invoeren zijn gekozen op basis van informatie van gemeente en politie. **Verplichte huisvestingsvergunning** Woningzoekenden moeten een huisvestingsvergunning aanvragen om in aanmerking te komen voor woonruimte in deze delen van Groenewoud op grond van de Wet bijzondere maatregelen grootstedelijke problematiek (zie [www.tilburg.nl/wbmgp](http://www.tilburg.nl/wbmgp)). Hierdoor wijken we af van de standaard woningtoewijzing. Passend toewijzen is nog wel van toepassing volgens de huur-/ inkomenstabel op Woninginzicht ([www.woninginzicht.nl](http://www.woninginzicht.nl/)). **** **Hoe gaat selectieve woningtoewijzing in zijn werk?** **Let op:** Als u _korter dan zes jaar in Tilburg woont ** n** een bijstandsuitkering of werkloosheidsuitkering heeft,_ komt u **n et** in aanmerking voor deze woning. **Het heeft dan geen zin om op deze woning te reageren.** **Stap 1: Individueel selectiegesprek TBV Wonen** Toewijzing is op basis van inschrijfduur en het tijdig aanleveren van de documenten. Belangrijk onderdeel van de procedure is een individueel gesprek met onze leefbaarheidsconsulent en verhuurconsulent. We toetsen dan op uw inkomen en woonduur in Tilburg. * Om in aanmerking te komen voor deze woning moet u minimaal 6 jaar in Tilburg wonen f inkomsten uit werk hebben (minimaal boven of tenminste gelijk aan het bijstandsniveau). Ook als u studiefinanciering, pensioen, AOW of VVU ontvangt komt u in aanmerking. * Daarnaast willen wij weten of u in het bezit bent van een startkwalificatie*. * Na dit gesprek laten we u weten of u in aanmerking komt voor deze woning. _* Een startkwalificatie is een havo of vwo-diploma of een mbo-diploma vanaf niveau 2 of hoger._ **Stap 2: toewijzing woning** Als u interesse heeft in de woning en de gegevens uit stap 1 in orde zijn dan wordt van de eerste 4 kandidaten de positie bepaald aan de hand van onderstaande voorrangregels: * Inkomsten uit werk * Een startkwalificatie * Inschrijfduur * **Stap 3: huisvestingsvergunning aanvragen bij de gemeente** Van de kandidaat die op de 1e positie eindigt geven wij een bereidverklaring af. Tevens vragen we samen de huisvestingsvergunning aan. Deze aanvraag versturen we naar de gemeente. Er zullen dan politiegegevens opgevraagd worden door de Burgemeester. **Benodigde papieren** Houdt u er rekening mee dat u, als u voor een gesprek wordt uitgenodigd, de volgende zaken moet meenemen: ( **indien u niet beschikt over _alle_ onderstaande gegevens dan zijn wij genoodzaakt om verder te gaan met de volgende kandidaat)** * Historisch uittreksel Basisregistratie Personen (BRP) * Kopie geldig legitimatiebewijs (paspoort, identiteitskaart, rijbewijs of verblijfsdocument) van alle meeverhuizende personen incl. kinderen * Verhuurdersverklaring (indien van toepassing, deze dient door uw huidige verhuurder ingevuld te worden) * Diploma s (indien van toepassing) * **Bewijs van inkomen** : * Een inkomensverklaring van de belastingdienst met daarop het verzamelinkomen uit 2021 vermeld * Loonspecificatie van uw werkgever(s) van de laatste drie maanden en een werkgeversverklaring * Bent u zelfstandig ondernemer dan dient u een offici le verklaring van uw boekhouder of accountant met vermelding van bruto jaarinkomen voorgaand jaar aan te leveren en de jaarrekening van het voorgaande boekjaar * Specificatie van uw uitkeringsinstantie(s) van uw inkomen van de laatste drie maanden. -Inkomen via AOW, pensioen of vervroegd uittreden; jaaropgave of uitkeringsspecificatie van de uitkeringsinstantie * Bij het ontvangen van studiefinanciering: * uw laatste ontvangen betalingsoverzicht van DUO * Let op: van alle personen in uw huishouden die meeverhuizen (met uitzondering van kinderen) moet u bovenstaande gegevens overleggen **Overnames** Overnames i.o.m. vertrekkende huurder.

Kaart