Huurwoning Amstelveen

Camera Obscuralaan 552, Amstelveen

Korte samenvatting

Locatie
Amstelveen
Huurprijs
€ 900,07
Type woning
Appartement
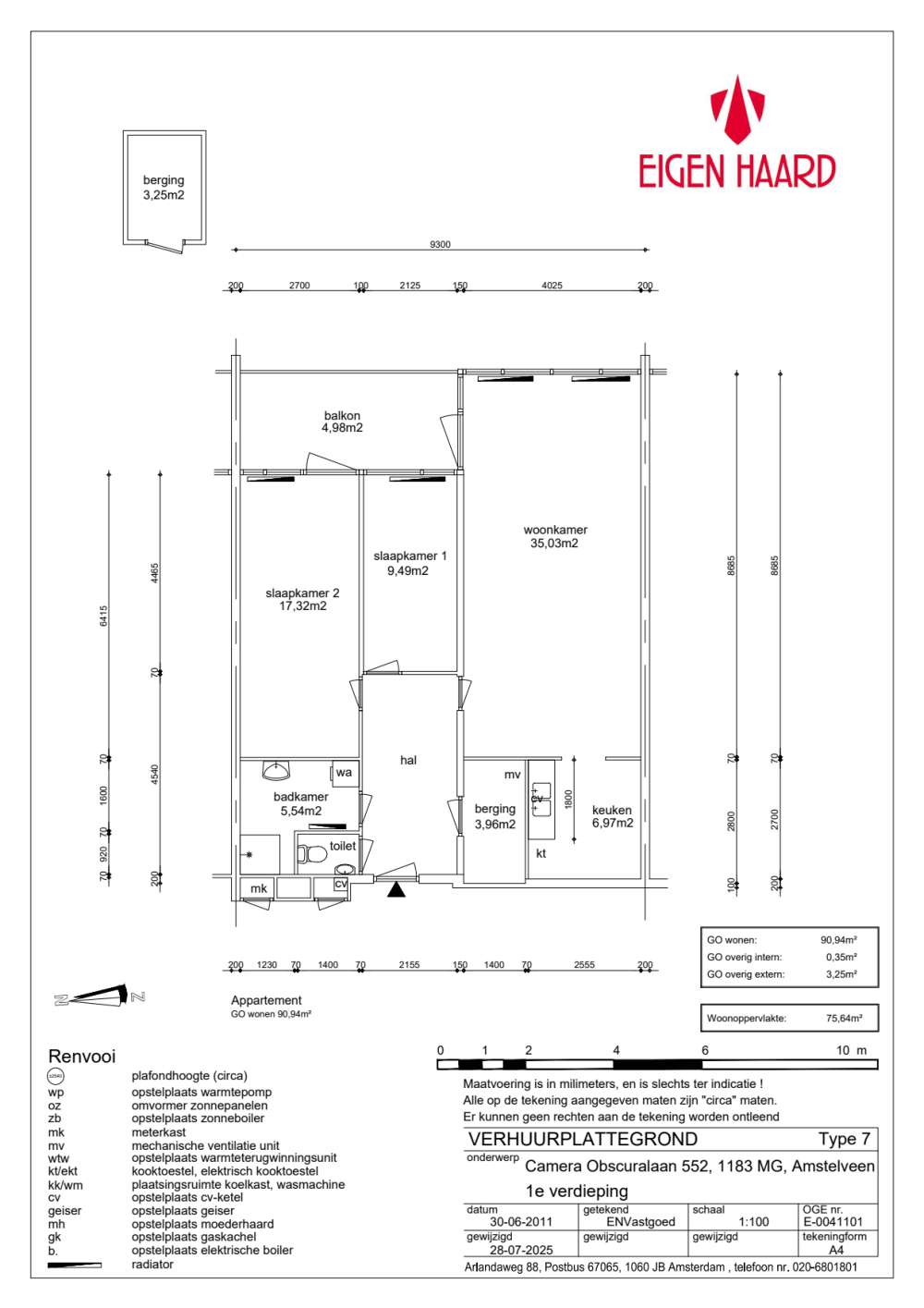
Oppervlakte:
78 m2
Kamers:
3
Slaapkamers:
2
Wachttijd:
(niet ingesteld)
Datum beschikbaar:
24 sep 2025
Maximaal inkomen:
(niet ingesteld)
Status:
Verlopen

Omschrijving woning

SeniorenwoningSenioren woning voor de leeftijd van minimaal 55 jaar. Personen van 65 jaar en ouder hebben voorrang.*inwonende kinderen zijn niet toegestaanVoorrang 65-plussers op seniorenwoningenIn de gemeente Amsterdam, Uithoorn, Ouder-Amstel, Amstelveen en Landsmeer krijgen woningzoekenden van 65 jaar en ouder voorrang op seniorenwoningen boven woningzoekenden van 55 t/m 64 jaar.BijzonderhedenVoorrangsregeling: Senioren minimaal 55+, voorrang 65-plussersDeze woning ligt in een gebied nabij Schiphol. Hierdoor kunt u (mogelijke) geluids- en milieuoverlast ervarenGratis parkeren in de wijkElektrisch zonnescherm, planken & kast in berging gratis ter overnameDe woningWoonkamer met open keukenKoken op gas2 SlaapkamersWasmachine aansluiting in de bergingToilet in de hal met fonteintjeBerging op begane grond 3.25m2Inpandige berging 3.96m2BalkonIn de buurtBasisschool (op fietsafstand)Middelbare school (op loopafstand)Winkelcentrum van der Hooplaan (op loopafstand)Openbaar vervoer (op loopafstand)Supermarkt (op loopafstand)Bloesempark (op fietsafstand)Let op:woningkenmerken, energielabel, plattegrond en huurprijs zijn nog onder voorbehoud. Klikhiervoor meer informatie.Technische staatWe leveren de woning volgens de Eigen Haard standaard op.  Voor meer informatie kijkt u op onzesite.Houd er rekening mee dat u zelf ook nog het een en ander moet doen om de woning naar uw smaak te maken. Denk aan schilderen van de muren en plafonds, afstomen van behang en/ of het leggen van een vloer.Wilt u de woning huren?Voor meer informatie over welke documenten u nog meer moet inleveren op het moment dat u eerste kandidaat wordt voor de woning, kijkt u op onzewebsite

Kaart