Huurwoning Amstelveen

Jan Goldschmedingplantsoen 22, Amstelveen

Korte samenvatting

Locatie
Amstelveen
Huurprijs
€ 900,07
Type woning
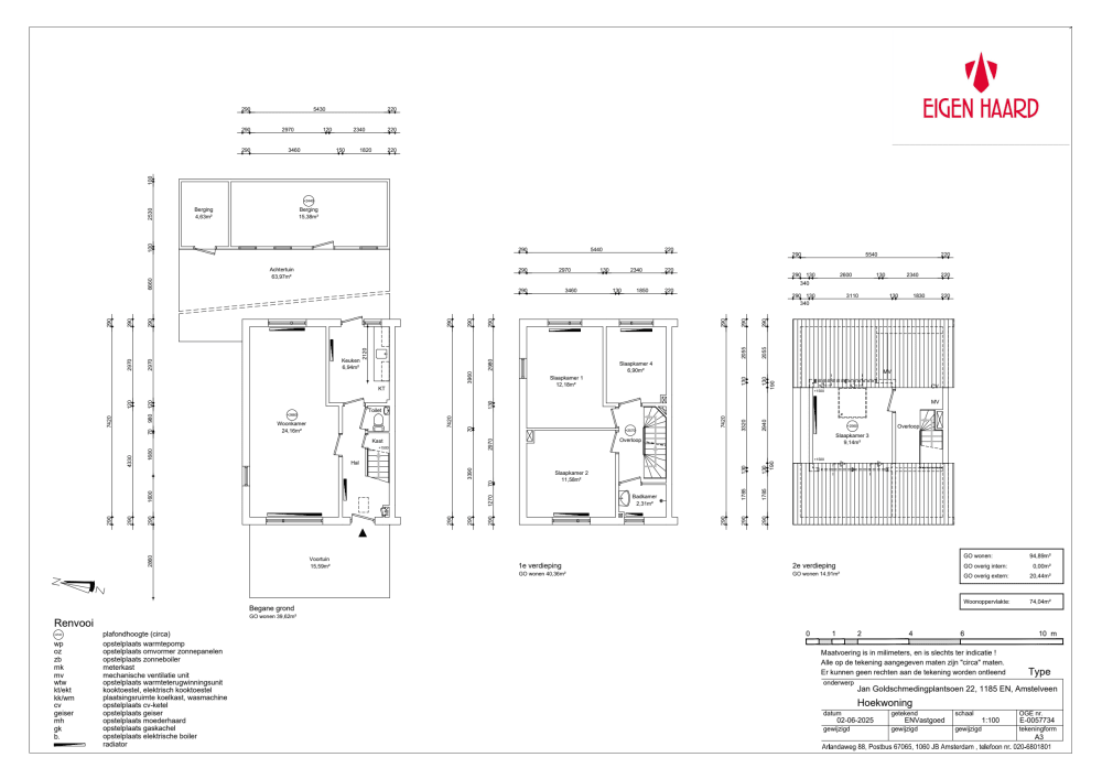
Hoekwoning
Oppervlakte:
75 m2
Kamers:
4
Slaapkamers:
3
Wachttijd:
(niet ingesteld)
Datum beschikbaar:
18 jun 2025
Maximaal inkomen:
(niet ingesteld)
Status:
Verlopen

Omschrijving woning

Voorrang voor inwoners van gemeente AmstelveenVoor deze woningen hebben inwoners van de gemeente Amstelveen voorrang. U moet hierbij aan de volgende voorwaarden voldoen:minimaal 6 jaar onafgebroken ingeschreven staan bij de gemeente Amstelveen (ingeschreven in de basisregistratie Personen van de gemeente Amstelveen)Voorrang grote gezinnenDeze woning is met voorrang bestemd voor grote gezinnen. Dit zijn huishoudens met minimaal drie kinderen onder de 18 jaar. Uitleg en de voorwaarden hierover vindt uhierop de website van Woningnet. De voorrang voor grote gezinnen wordt pas gecontroleerd nadat u op de nummer 1 positie bent gekomen en de woning aangeboden heeft gekregen.BijzonderhedenDe woning heeft niet 3 maar 4 slaapkamers4e slaapkamer is 6.9 m2Voorrangsregels: Klein gezinGratis parkerenZonnescherm & grote berging gratis ter overnameDeze woning ligt in een gebied nabij Schiphol. Hierdoor kunt u (mogelijke) geluids- en milieuoverlast ervarenDe woningWoonkamer met aparte keukenKoken op gas4 slaapkamersToilet in de hal met fonteintjeVoor & achtertuinVaste trap naar zolderIn de buurtBasisschool (op fietsafstand)Middelbare school (op fietsafstand)Winkelcentrum (op fietsafstand)Openbaar vervoer (op loopafstand)Supermarkt (op fietsafstand)Let op:woningkenmerken, energielabel, plattegrond en huurprijs zijn nog onder voorbehoud. Klikhiervoor meer informatie.Technische staatWe leveren de woning volgens de Eigen Haard standaard op.  Voor meer informatie kijkt u op onzesite.Houd er rekening mee dat u zelf ook nog het een en ander moet doen om de woning naar uw smaak te maken. Denk aan schilderen van de muren en plafonds, afstomen van behang en/ of het leggen van een vloer.Wilt u de woning huren?Voor meer informatie over welke documenten u nog meer moet inleveren op het moment dat u eerste kandidaat wordt voor de woning, kijkt u op onzewebsite

Kaart