Huurwoning Amstelveen

Rembrandtweg 243, Amstelveen

Korte samenvatting

Locatie
Amstelveen
Huurprijs
€ 794,14
Type woning
Portiekwoning
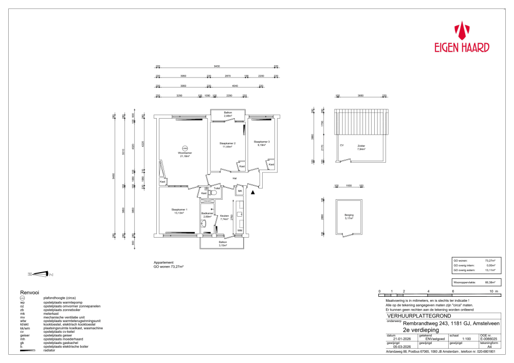
Oppervlakte:
65 m2
Kamers:
4
Slaapkamers:
3
Wachttijd:
(niet ingesteld)
Datum beschikbaar:
6 mrt 2026
Maximaal inkomen:
(niet ingesteld)
Status:
Gepubliceerd
Reageren

Omschrijving woning

Parkeren/ met vergunning:Linknaar gemeente AmstelveenParkeren kan voldoende in de buurt met een vergunning, mits er een vergunning wordt toegekend. Wij verwijzen u naar de gemeente voor informatie hierover. Optioneel is het mogelijk om in de omgeving een parkeerplaats te huren. Bekijk ons aanbod op dewebsitevan Eigen Haard:BijzonderhedenLET OP: Zolder ontbreek op de plattegrond maar is wel aanwezigBetaald parkerenGehorige woningDeze woning ligt in een gebied nabij Schiphol. Hierdoor kunt u (mogelijke) geluids- en milieuoverlast ervarenDe woningWoonkamer met aparte keuken3 slaapkamersToilet in de halBalkonZolder op de bovenste etageBerging op de begane grondIn de buurtBasisschool (op fietsafstand)Middelbare school (op fietsafstand)Winkelcentrum (op fietsafstand)Openbaar vervoer (op loopafstand)Supermarkt (op fietsafstand)Let op:woningkenmerken, energielabel, plattegrond en huurprijs zijn nog onder voorbehoud. Klikhiervoor meer informatie.Technische staatWe leveren de woning volgens de Eigen Haard standaard op.  Voor meer informatie kijkt u op onzesite.Houd er rekening mee dat u zelf ook nog het een en ander moet doen om de woning naar uw smaak te maken. Denk aan schilderen van de muren en plafonds, afstomen van behang en/ of het leggen van een vloer.Wilt u de woning huren?Voor meer informatie over welke documenten u nog meer moet inleveren op het moment dat u eerste kandidaat wordt voor de woning, kijkt u op onzewebsiteDe advertentie is gewijzigd op 06-03-2026 10:50:47.

Kaart