Huurwoning Amstelveen

Rembrandtweg 276, Amstelveen

Korte samenvatting

Locatie
Amstelveen
Huurprijs
€ 925,07
Type woning
Portiekwoning
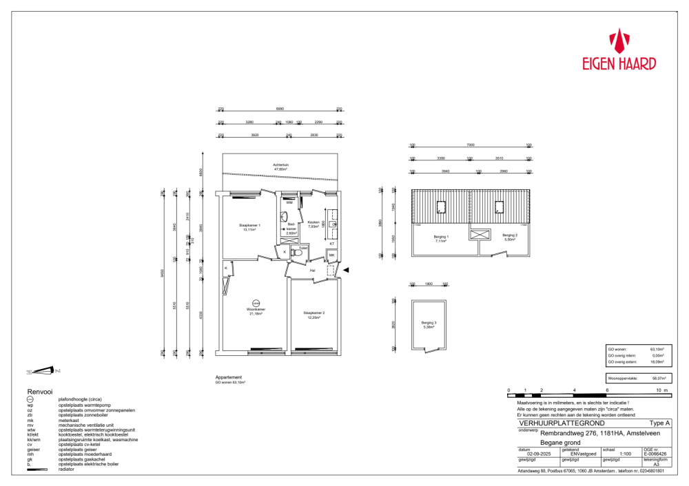
Oppervlakte:
57 m2
Kamers:
3
Slaapkamers:
2
Wachttijd:
(niet ingesteld)
Datum beschikbaar:
1 okt 2025
Maximaal inkomen:
(niet ingesteld)
Status:
Verlopen

Omschrijving woning

Parkeren/ met vergunning:Linknaar gemeente AmstelveenParkeren kan voldoende in de buurt met een vergunning, mits er een vergunning wordt toegekend. Wij verwijzen u naar de gemeente voor informatie hierover. Optioneel is het mogelijk om in de omgeving een parkeerplaats te huren. Bekijk ons aanbod op dewebsitevan Eigen Haard:BijzonderhedenBetaald parkerenGehorige woningDeze woning ligt in een gebied nabij Schiphol. Hierdoor kunt u (mogelijke) geluids- en milieuoverlast ervarenDe woningWoonkamer met aparte keuken2 slaapkamersToilet in de halRuime achtertuinGroot zolderBerging op de begane grondIn de buurtBasisschool (op fietsafstand)Middelbare school (op fietsafstand)Winkelcentrum (op fietsafstand)Openbaar vervoer (op loopafstand)Supermarkt (op fietsafstand)Let op:woningkenmerken, energielabel, plattegrond en huurprijs zijn nog onder voorbehoud. Klikhiervoor meer informatie.Technische staatWe leveren de woning volgens de Eigen Haard standaard op.  Voor meer informatie kijkt u op onzesite.Houd er rekening mee dat u zelf ook nog het een en ander moet doen om de woning naar uw smaak te maken. Denk aan schilderen van de muren en plafonds, afstomen van behang en/ of het leggen van een vloer.Wilt u de woning huren?Voor meer informatie over welke documenten u nog meer moet inleveren op het moment dat u eerste kandidaat wordt voor de woning, kijkt u op onzewebsite

Kaart