Huurwoning Amsterdam

Adelaarsweg 116HS, Amsterdam

Korte samenvatting

Locatie
Amsterdam
Huurprijs
€ 905,38
Type woning
Benedenwoning
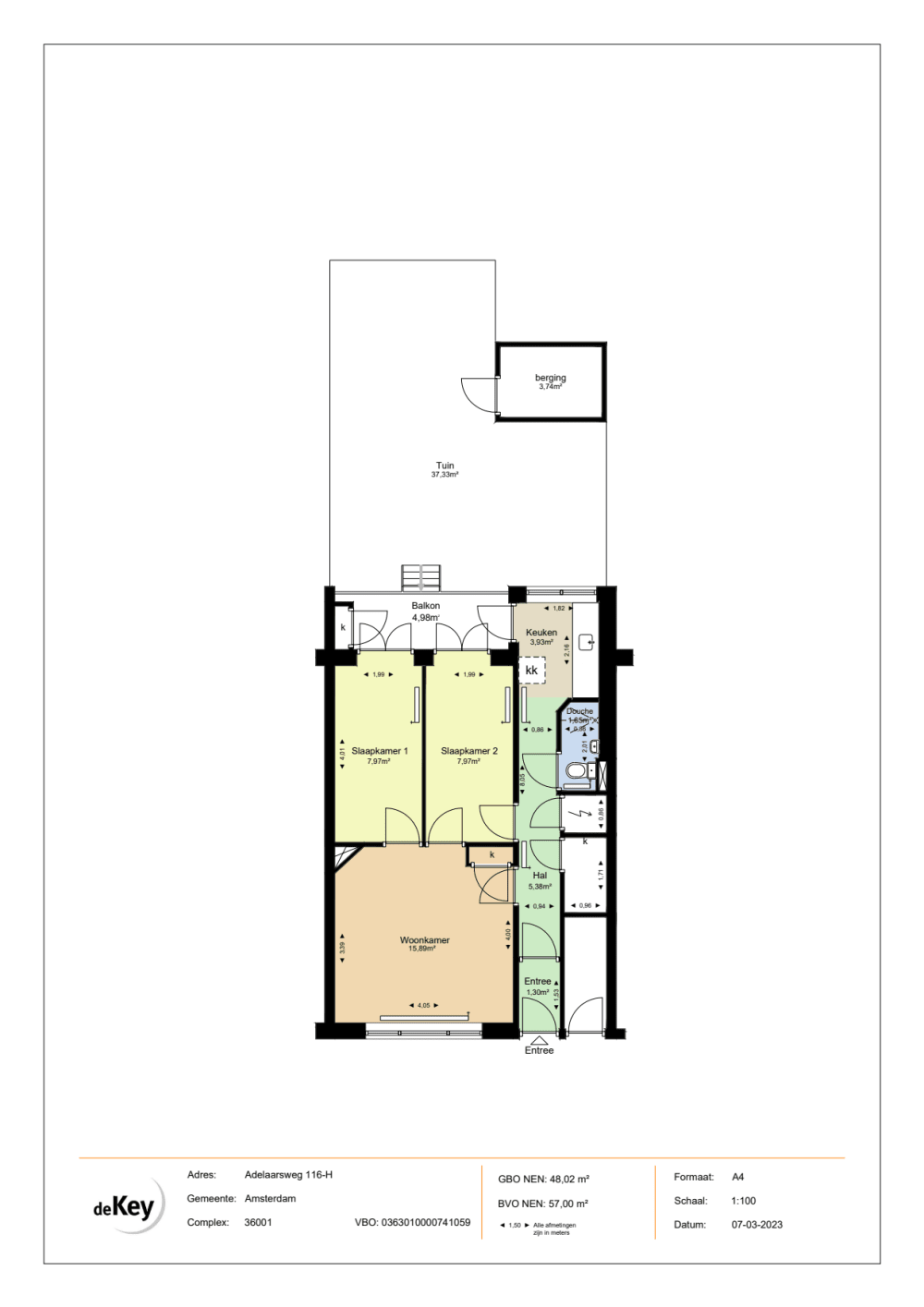
Oppervlakte:
37 m2
Kamers:
3
Slaapkamers:
2
Wachttijd:
(niet ingesteld)
Datum beschikbaar:
20 feb 2025
Maximaal inkomen:
(niet ingesteld)
Status:
Verlopen

Omschrijving woning

Let op! Plattegrond kan afwijken van de werkelijkheid.Let op! Voor deze woning kan geen huurtoeslag worden aangevraagdBetreft een zogenaamde 3 kamer begane grond "Dijkwoning " wat wil zeggen dat de tuin en schuur van de woning alleen via de woning en door middel van een trap bereikbaar zijn. Er is geen achterom. de woning is als wisselwoning gebruikt en daardoor voorzien van vloerbedekking en gordijnen.Kenmerken woning:• energielabel A• niet bereikbaar met lift• open keuken• elektrisch koken met perilex aansluiting (2 fase)• aansluiting wasmachine in de keuken• individuele cv combi-ketel• toilet in badkamer• dubbele beglazing• gehorige woning• tuin en ivm hoogte verschil ook een balkon• berging in de tuinDe overige kenmerken van de woning zijn helemaal onderaan te vinden.In de buurt:• winkels• voorzieningen• openbaar vervoer• scholenAfval en parkeren:• Benieuwd waar u huisafval kan laten? Klik hier voor meer informatie over huisvuil in Amsterdam Klik hier voor meer informatie over huisvuil in Diemen.• Benieuwd of er een parkeermogelijkheid is bij deze woning? Let op: bij sommige woningen is een parkeervergunning niet toegestaan. Klik hier voor meer informatie over parkeervergunningen in de gemeente Amsterdam Klik hier voor meer informatie over parkeervergunningen in de gemeente DiemenTechnische staat van onze woningenWe leveren de woning volgens de Lieven de Key standaard op. Houd er rekening mee dat u zelf nog wat aan de woning moet doen. Denk hierbij bijvoorbeeld aan behangen en schilderen en het leggen van een vloer. Kijk hier voor de kwaliteitseisen van Lieven de Key en hoe wij een woning opleveren.Aanvullende voorwaardenWaarborgsomLieven de Key brengt een waarborgsom ter hoogte van €808,- in rekening. Deze waarborgsom betaalt u samen met de eerste huur vóór ondertekening van de huurovereenkomst.Verzamel alvast uw gegevensWordt u uitgenodigd voor de bezichtiging? Verzamel dan alvast uw gegevens. Wacht niet totdat u de eerste kandidaat bent. Deze documenten moet u straks aanleveren:Verklaring kandidaat(verplicht document)Inkomensverklaring van de belastingdienst(verplicht document)Verhuurdersverklaring:woont u nog thuis? Dan hoeft u dit document niet aan te leverenUittreksel Basisregistratie Personen (BRP)waar de huwelijkse staat, historische adressen en aantal persoenen in het huishouden op staat van de gemeente waar u nu woont: woont u in Amsterdam? Dan hoef u dit document niet aan te leveren.Kijk voor meer informatie over deze documenten op onze website:https://lievendekey.nl/socialehuurwoningBeschikbaarheid:Dit is de datum waarop wij verwachten dat de huurovereenkomst ondertekend kan worden. Let op: aan vermelding van deze datum kunnen geen rechten worden ontleend, deze datum kan nog veranderen.

Kaart