Huurwoning Amsterdam

Blankenstraat 150, Amsterdam

Korte samenvatting

Locatie
Amsterdam
Huurprijs
€ 594,99
Type woning
Benedenwoning
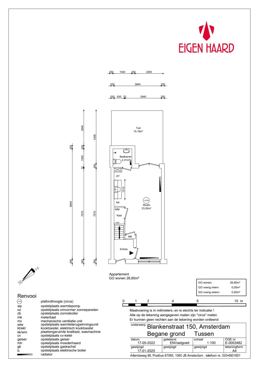
Oppervlakte:
24 m2
Kamers:
1
Slaapkamers:
0
Wachttijd:
(niet ingesteld)
Datum beschikbaar:
14 feb 2025
Maximaal inkomen:
€ 39.055,00
Status:
Verlopen

Omschrijving woning

BijzonderhedenWoning is niet geschikt voor huishoudens met kinderenGehorige woningenBetaald parkeren/ met vergunning: zie voor meer informatie website gemeente AmsterdamInclusief stookkosten (in de servicekosten)Inclusief verwarming warmwater   (in de servicekosten)De woningJongerenwoning1- kamerwoning met open keukenLet op ! weinig ruimte voor wat grotere bedkleine badkamer met toiletWasmachine aansluiting in kast (zie plattegrond)Gehorige woningKlein tuintjeGeen aparte berging aanwezigWoning is inclusief stookkosten (servicekosten nog onder voorbehoud)Woning is inclusief verwarming warm water (servicekosten nog onder voorbehoud)BuurtNabij basisschoolNabij Bierbrouwerij het IJNabij sportschoolNabij supermarktNabij openbaar vervoer10 minuten fietsen naar Centraal StationWelke voorzieningen zijn er in de buurt? Kijk bij tabblad Buurt om meer over de buurt te weten te komen.JongerenwoningenVoor deze woning wordt een tijdelijk contract afgesloten, met een looptijd van maximaal 5 jaar.Bij deze jongerenwoning geldt dat er minimaal 1 en maximaal 2 personen mogen wonen. Huishoudens van 3 of meer personen kunnen hierdoor niet worden toegewezen. Daarnaast zijn huishoudens met kinderen in deze woning niet toegestaan. Een jongerencontract wordt slechts afgesloten tót de leeftijd van 28 jaar. Als men 28 wordt ná het reageren op de woning maar vóór het tekenen van de huurovereenkomst komt men niet in aanmerking.Let op!!studenten die een voltijdse dagopleiding volgen en/of staan ingeschreven bij Studentenwoningweb komen niet in aanmerking voor een jongerenwoning met een vijfjarencontract, tenzij er in de gemeente geen studentenwoningen zijn. Studenten die een deeltijdopleiding volgen mogen wel reageren op jongerenwoningen met een vijfjarencontract.Let op:woningkenmerken, plattegrond en huurprijs zijn nog onder voorbehoud. Klik hier voor meer informatie:https://www.woningnetregioamsterdam.nl/Nieuws/Huurprijzen%20onder%20voorbehoud%20bij%20Eigen%20HaardTechnische staatWe leveren de woning volgens de Eigen Haard standaard op.  Voor meer informatie kijkt u op onze site:https://www.eigenhaard.nl/weten-en-regelen/sociale-huur/nieuwe-huurders/oplevering#F4BBB11819D44A4184749E7F8DD30BD7Houd er rekening mee dat u zelf ook nog het een en ander moet doen om de woning naar uw smaak te maken. Denk aan schilderen van de muren en plafonds, afstomen van behang en/ of het leggen van een vloer.Wilt u de woning huren?Voor meer informatie over welke documenten u nog meer moet inleveren op het moment dat u eerste kandidaat wordt voor de woning, kijkt u op onze website:https://www.eigenhaard.nl/weten-en-regelen/sociale-huur/nieuwe-huurders/acceptatie-en-toewijzingInkomensverklaringControleert u voordat u gaat reageren op deze woning, of uw recente inkomen staat genoteerd in Woningnet. Dit voorkomt teleurstelling.

Kaart