Huurwoning Amsterdam

Bontekoestraat 20, Amsterdam

Korte samenvatting

Locatie
Amsterdam
Huurprijs
€ 737,14
Type woning
Portiekwoning
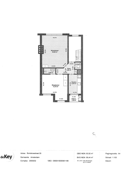
Oppervlakte:
41 m2
Kamers:
2
Slaapkamers:
1
Wachttijd:
(niet ingesteld)
Datum beschikbaar:
20 mrt 2020
Maximaal inkomen:
€ 39.055,00
Status:
Verlopen

Omschrijving woning

Beschrijving woning                                                   Deze leuke 2 kamer- portiekwoning op de 1e verdieping ligt in Westerpark aan een redelijk rustige straat. De woning is voorzien van dubbel glas en wordt verwarmd door middel van een CV-installatie. De oplevering van deze woning is per direct 12 maart 2020. Let op: Deze woning wordt niet toegewezen aan gezinnen met kinderen. Kenmerken woning Deze woning: heeft wel een balkon (op het westen) ( 4-6m2). heeft een aparte keuken ( 8-10m2) heeft een zolderberging boven en geen berging beneden ( 4-6m2) wordt ontsloten via portiek en is niet bereikbaar met lift heeft een individueel verwarmingssysteem ligt in de nabijheid van winkels, voorzieningen, openbaar vervoer en scholen is wel gehorig ( in verband met houten vloeren)   heeft een woonkamer van 18-20m2 heeft een badkamer uitgerust met wastafel, toilet en douche met douchegarnituur ( 1-2m2) heeft een wasmachine aansluiting in de keuken heeft het toilet in een separate ruimte Bijzonderheden op complexniveau Betaald parkeren, parkeervergunning via Gemeente Amsterdam Schoonmaak is niet opgenomen in de servicekosten Watergeld is niet opgenomen in de servicekosten (je dient dit zelf te regelen bij WaterNet) Als aanvulling op de voorwaardentekst geldt dat ook voltijdstudenten niet in aanmerking komen voor een jongerenwoning. Verder brengt De Key een waarborgsom ter hoogte van één maand netto huur in rekening. Deze waarborgsom betaal je samen met de eerste huur vóór ondertekening van de huurovereenkomst. Huurtoeslag is niet mogelijk Voorwaarden: Inkomensverklaring verplicht Een verklaring geregistreerd inkomen of een definitieve aanslag inkomstenbelasting van de Belastingdienst van u en alle meeverhuizende personen (behalve kinderen) is verplicht. Deze moet van het voorgaande jaar zijn, of als deze nog niet beschikbaar is, van het jaar daarvoor. Vraag uw  inkomensverklaring  direct aan door in te loggen op Mijn Belastingdienst of via de Belastingtelefoon (0800-0543). De corporatie controleert uw inkomen bij de toewijzing en wil uw inkomensverklaring(en) altijd ontvangen, ook als er geen bedrag op staat. Zorg ervoor dat het inkomen in uw inschrijving klopt. Anders loopt u het risico dat de corporatie u afwijst als u eerste kandidaat wordt. Jongerencontract Voor deze woning wordt een  tijdelijk contract  afgesloten, met een maximale looptijd van  vijf jaar . U krijgt na toewijzing een nieuwe inschrijving, met behoud van uw inschrijfduur. Binnen vijf jaar moet u zelf een andere woning hebben gevonden. Let op:  als u en/of uw mede-inschrijver op moment van huuringang 28 jaar of ouder is, kunnen wij u geen huurovereenkomst aanbieden!

Kaart