Huurwoning Amsterdam

Dijkmeerlaan 204, Amsterdam

Korte samenvatting

Locatie
Amsterdam
Huurprijs
€ 730,97
Type woning
Appartement
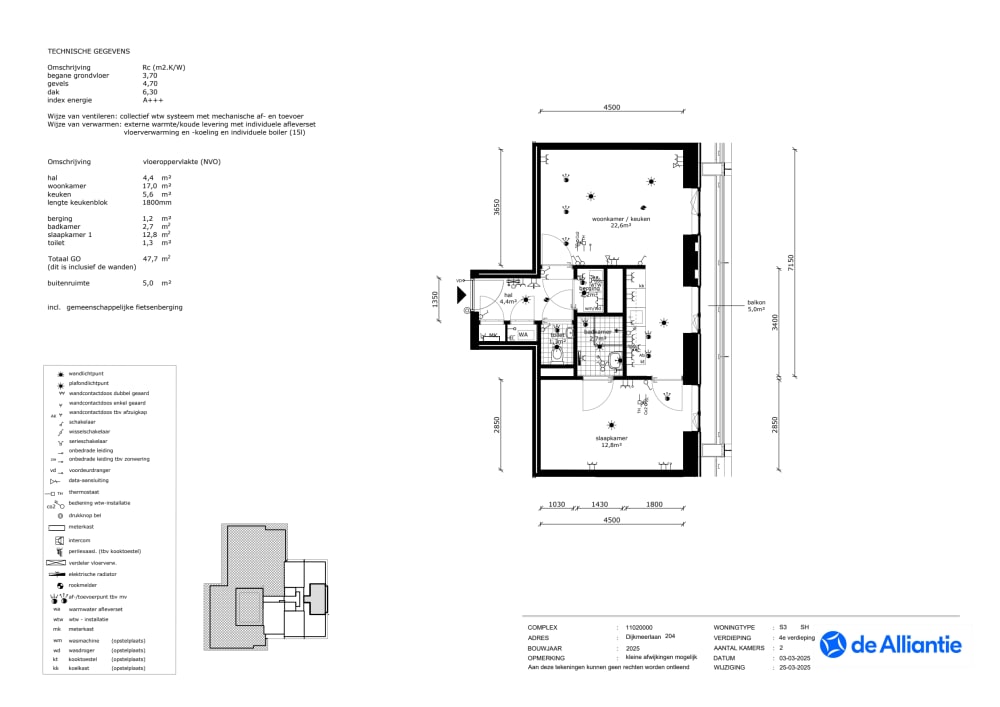
Oppervlakte:
38 m2
Kamers:
2
Slaapkamers:
1
Wachttijd:
(niet ingesteld)
Datum beschikbaar:
(niet ingesteld)
Maximaal inkomen:
€ 39.055,00
Status:
Verlopen

Omschrijving woning

De Vlucht110 sociale huurwoningen in parkachtige stadswijkOp de plek waar vroeger de Bijlmer Bajes stond, komt een groene stadswijk met zo’n 1.350 woningen. De Vlucht is een woontoren van 18 verdiepingen met 110 sociale huurwoningen.ProjectOp de plek waar vroeger de Bijlmer Bajes stond, komt een groene stadswijk met zo’n 1.350 woningen. Het gaat vooral om hoge gebouwen met appartementen in een parkachtige omgeving. Aan de Dijkmeerlaan komt De Vlucht. Deze woontoren biedt ruimte aan 110 sociale huurwoningen. Op de begane grond van De Vlucht komt een gezamenlijke fietsenstalling. Het Bajeskwartier ligt op slechts 15 fietsminuten van het centrum van Amsterdam. In een paar minuten lopen bereik je het metrostation aan de Spaklerweg.Energieneutrale, bruisende wijkHet Bajeskwartier wordt een energieneutrale wijk met onder andere een school voor middelbaar onderwijs, horeca, werkplekken voor kunstenaars en een gezondheidscentrum. Het Bajeskwartier is een stedelijke wijk, maar ook een groene wijk. De wijk nodigt uit tot een gezonde leefstijl. Dit betekent dat er veel ruimte is voor sport en spel.WoningenIn De Vlucht komen 110 sociale huurwoningen. 36 woningen worden niet geadverteerd via Woningnet. Deze zijn gereserveerd voor andere doelgroepen. In alle woningen komt vloerverwarming en vloerkoeling. Verder krijgen alle woningen een eigen buitenruimte. Op het dak liggen zonnepanelen. Hierdoor krijgt een deel van de woningen zonnestroom.Huurprijzen en servicekostenDe huurprijzen van de woningen verschillen. Het gaat om huurprijzen van ongeveer € 683 tot zo’n € 900 per maand. Daarnaast betalen bewoners servicekosten. Deze servicekosten zijn ongeveer € 60 per maand.EnergieJe kunt zelf kiezen bij welke leverancier je elektriciteit wilt afnemen. Dat is niet het geval voor verwarming, koeling en warm water. Hiervoor sluit je een leveringsovereenkomst af met Eteck. Eteck wekt de energie voor het Bajeskwartier op met zonnepanelen en een WKO-installatie. WKO staat voor Warmte Koudeopslag. Houd verder rekening met kosten voor water via Waternet.Elektrisch kokenEr is alleen elektrisch koken mogelijk. In de keuken is er een perilex aansluiting. Voor het aanschaffen van een fornuis heeft u een twee fase stekker nodig.Bekijken van de woningLet op: Bij dit nieuwbouwproject is het niet mogelijk om de woningen te bekijken. Je accepteert de woning op basis van de advertentietekst, plattegronden en voorbeeldfoto’s. De woningen kunnen afwijken van de plattegrond.Het bekijken van deze woningen is digitaal. Een digitale bezichtiging in Woningnet betekent: wel of niet accepteren op basis van de plattegrond en advertentietekst. Aan de plattegrond en voorbeeldfoto’s kunnen geen rechten worden ontleend.ParkerenBij de Vrijheid komen geen parkeerplaatsen voor auto’s. Bewoners komen ook niet in aanmerking voor een parkeervergunning. Wel komt er een grote, gezamenlijke fietsenstalling op de begane grond van het gebouw.PlanningDe Vlucht leveren we naar verwachting op eind 2025.Let op! Dit is een prognose.Voor meer informatie kunt u terecht op de projectpaginaDe Vlucht | de AlliantieHeeft u een vraag? Stuur dan een e-mail naar:Bajeskwartier@de-alliantie.nlDisclaimer:Onder voorbehoud van wijzigingen. Je kunt geen rechten ontlenen aan deze informatie.

Kaart