Huurwoning Amsterdam

Docklandsweg 89, Amsterdam

Korte samenvatting

Locatie
Amsterdam
Huurprijs
€ 948,90
Type woning
Appartement
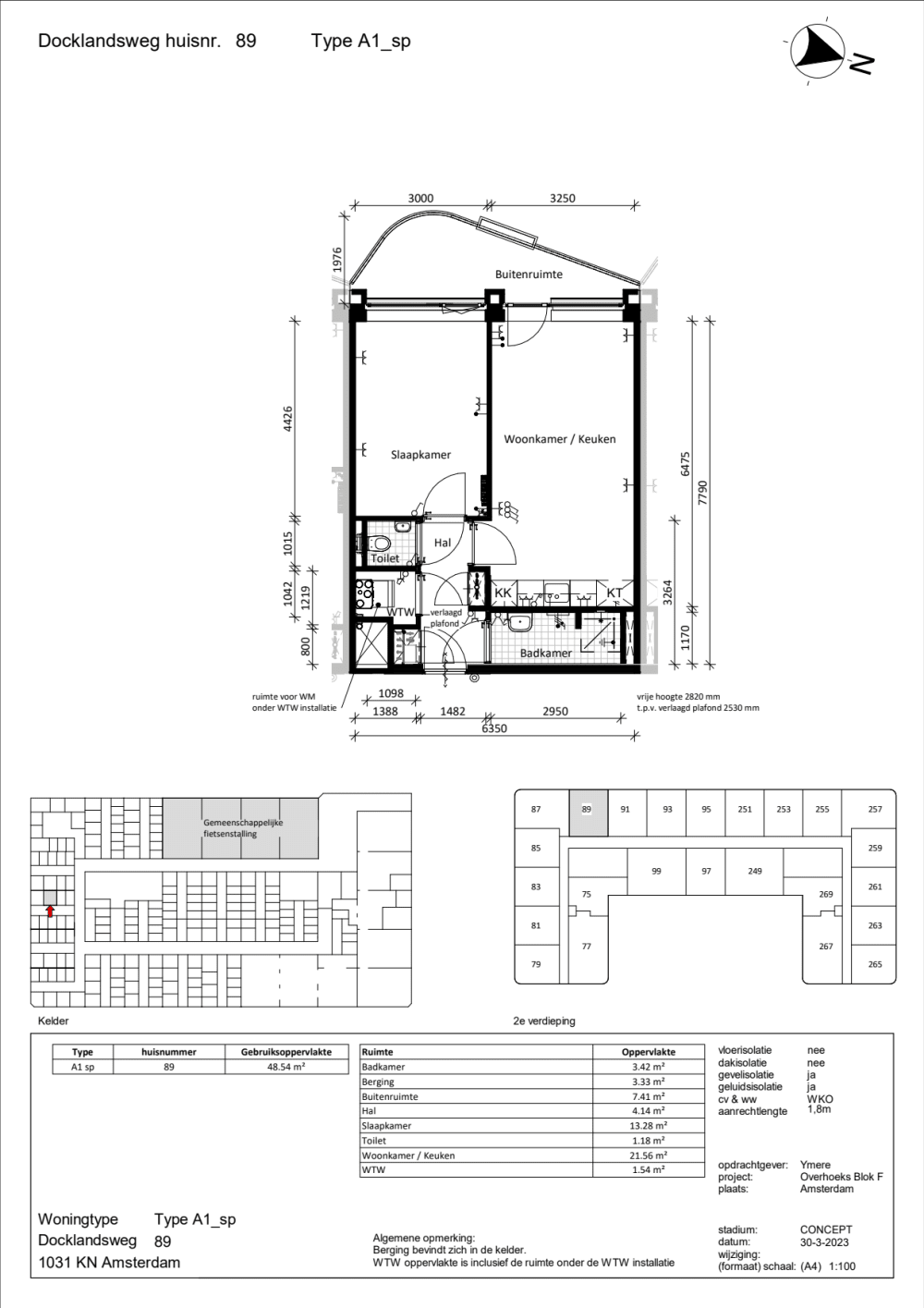
Oppervlakte:
38 m2
Kamers:
2
Slaapkamers:
1
Wachttijd:
(niet ingesteld)
Datum beschikbaar:
4 feb 2026
Maximaal inkomen:
(niet ingesteld)
Status:
Gepubliceerd
Reageren

Omschrijving woning

Corridorflat met twee kamers op de 2eetage in de buurt van IJ Oevers Buiksloterham in Amsterdam NoordWoningOpen keukenBadkamer en toilet apartWasmachineaansluiting in de bergingDe woning heeft leef- en contactgeluidenBovenburenBalkonBergingLiftBijzonderhedenNieuwbouw 2 kamerwoning op de 2e etageBuurt is autoluwVerplicht warmte contract van EteckWoning is gasloosStaat van de woningYmere levert iedere woning op met basiskwaliteit: schoon, heel en veilig.Wat moet u aan de woning doen?Houdt er rekening mee dat u zelf nog het een en ander moet doen om de woning naar uw smaak te maken. Denk hierbij aan het leggen van ondervloeren en vloeren (minimaal 10 decibel reducerend), schilderen en behangen van de wanden en plafondsIn de buurtOpenbaar vervoerScholenWinkelsSupermarktHorecaParkenUitvalswegenBetaald parkerenVerzamel alvast uw gegevensKrijgt u een uitnodiging om deze woning te bekijken en wilt u komen kijken? Verzamel dan alvast uw gegevens voor Ymere.  Want als u de woning komt bekijken en daarna laat weten dat u deze wilt huren, moet uuw gegevensde volgende werkdag voor 12.00 uur aanleveren. Ook als u niet kandidaat nummer 1 bent levert u de gevraagde documenten in! Kijk oponze websiteof indeze folder wat u moet aanleveren. Levert u uw gegevens niet op tijd aan? Dan krijgt u geen aanbod. U kunt de woning niet meer huren.Een intakegesprek kan onderdeel zijn van de toewijzingsprocedure. Na het gesprek hoort u van ons of wij u de woning toewijzen.BezichtigingKandidatennummer 1 t/m 10 worden uitgenodigd voor een bezichtiging opvrijdag 20 februari 2026 om 11:00 uur. Als u geen uitnodiging heeft dan kan u niet komen bezichtigen. Deze datum is onder voorbehoud u krijgt een notificatie per mail als de datum wijzigt.Tot slotDe oplevering van de woning kan afwijken van de advertentietekst, de plattegrond, de foto’s en de bezichtiging in verband met eventuele werkzaamheden.Aan deze advertentie kunt u geen rechten ontlenen.

Kaart