Huurwoning Amsterdam

Eosstraat 306, Amsterdam

Korte samenvatting

Locatie
Amsterdam
Huurprijs
€ 900,07
Type woning
Appartement
Oppervlakte:
66 m2
Kamers:
3
Slaapkamers:
2
Wachttijd:
(niet ingesteld)
Datum beschikbaar:
11 apr 2025
Maximaal inkomen:
(niet ingesteld)
Status:
Verlopen

Omschrijving woning

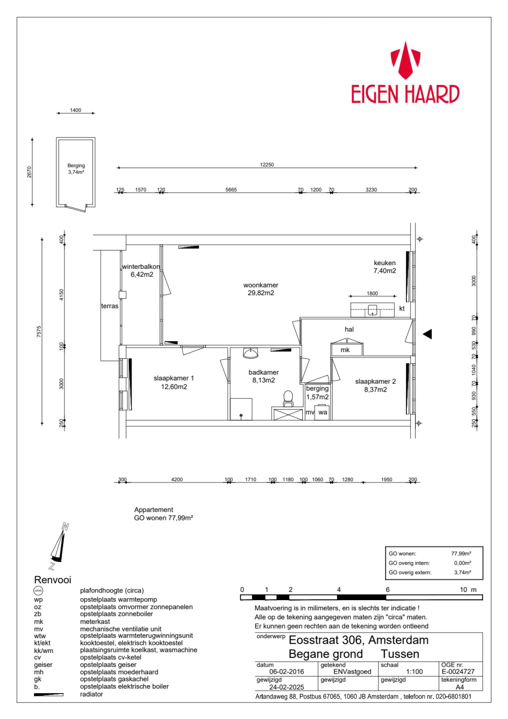
Voorrang kleine gezinnenDeze woning is met voorrang bestemd voor kleine gezinnen. Dit zijn huishoudens met één of twee kinderen. Minimaal één van de kinderen moet jonger dan 18 jaar zijn.Zoek op dewebsite van Woningnetop “kleine gezinnen” om uitleg en de voorwaarden te lezen. De voorrang voor kleine gezinnen wordt pas gecontroleerd nadat u op de nummer 1 positie bent gekomen en de woning aangeboden heeft gekregen.De woning3 kamer appartement.Gelegen op de begane grond, te bereiken met de lift.Gelijkvloerse woning.Inpandig winterbalkon met ramen die opengeklapt kunnen worden (géén balkon buiten). Te bereiken vanuit de woonkamer en de slaapkamer.Woonkamer met open keuken. U kookt op elektra.2 slaapkamers. Waarvan één slaapkamer met een tussendeur naar de badkamer.Kleine berging in de woning. Daar is ook de wasmachine aansluiting.Berging van 4m2 beneden in het gebouw.Gemeenschappelijke tuin. U betaalt hiervoor een bijdrage in de servicekosten.Mechanische ventilatie.De woningkenmerken, plattegrond en huurprijs kunnen nog wijzigen. Klikhiervoor meer informatie.Mogelijkheid tot huren van een parkeerplaats in de parkeergarage rondom de Eosstraat. Er is een wachtlijst. Klikhiervoor meer informatie.De buurtBetaald parkeren in de straat. Voor meer informatie, klikhier.In de wijk Stadionbuurt, Olympisch kwartier, Amsterdam ZuidBasisscholen op 10-15 minuten loopafstandSupermarkten in de directe omgevingOpenbaar vervoer in de directe omgevingDe woning ligt vlakbij Schiphol. Hier kunt u geluidsoverlast door ervarenTechnische staatWe leveren de woning volgens de Eigen Haard standaard op. Voor meer informatie kijkt uhier. Houd er rekening mee dat u zelf ook nog het een en ander moet doen om de woning naar uw smaak te maken. Denk aan schilderen van de muren en plafonds, afstomen van behang en/ of het leggen van een vloer.Wilt u de woning huren?Voor meer informatie over welke documenten u nog meer moet inleveren op het moment dat u eerste kandidaat wordt voor de woning, kijkt uhierop onze website.

Kaart