Huurwoning Amsterdam

Fokkezeil 67, Amsterdam

Korte samenvatting

Locatie
Amsterdam
Huurprijs
€ 950,00
Type woning
Portiekwoning
Oppervlakte:
65 m2
Kamers:
3
Slaapkamers:
2
Wachttijd:
(niet ingesteld)
Datum beschikbaar:
14 feb 2025
Maximaal inkomen:
(niet ingesteld)
Status:
Verlopen

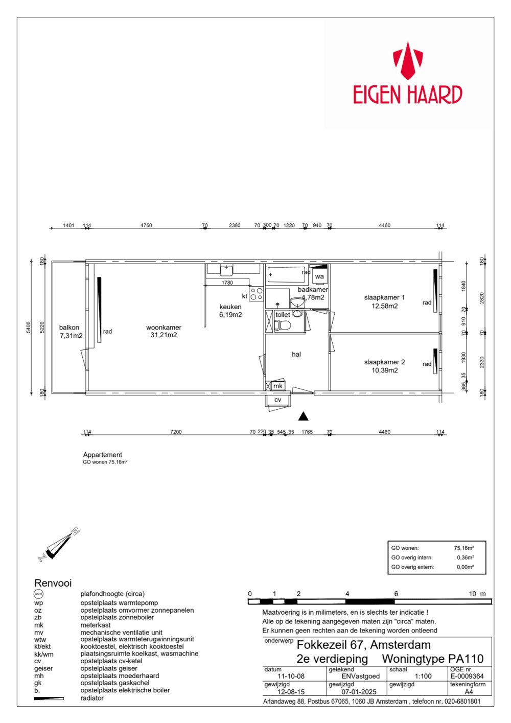
Omschrijving woning

Tip!Verzamelde benodigde documentenalvast. Je hebt zemeteenna de bezichtiging nodig.Over de buurtInde wijk De Banne inAmsterdam Noord, een aantrekkelijke en rustige wijk omringd door groen.Een kindvriendelijke buurt, nabij openbaar vervoer en winkels in het grote winkelcentrum Boven ’t IJ en het winkelcentrum De Banne. Recreatiegebied het Twiske is in tien minuten fietsen bereikbaar.Indeling van de woningOp de tweede verdieping bevindt zich de entree naar de woning. Vanuit de hal kom je in de lichte woonkamer en in de open keuken. Vanuit de woonkamer bereik je het balkon. De woning heeft twee ruime slaapkamers, een badkamer met douche, separaat toilet, een externe berging, cv en dubbele beglazing.ParkerenWij verwijzen je naar de gemeente voor informatie over het parkeren. Optioneel is het mogelijk om in de omgeving een parkeerplaats te huren. Er kunnen wachtlijsten zijn. Bekijk onsparkeeraanbod.ToewijzingEigen Haard verhuurt huurwoningen in het middensegment op basis van het actuele inkomen (inkomen op dit moment). Zorg er daarom voor dat je actuele inkomen staat ingevuld in je profiel vóórdat je reageert op de woning. Laat dit bedrag vervolgens in je profiel staan totdat de selectie van de woning is geweest. Doe je dit niet? Dan kan het zijn dat wij je bij de gegevens controle moeten afwijzen voor de woning. Bekijk hier hoe je het actuelegezamenlijk jaarinkomenbepaald.Het actuele inkomen van jou en je eventuele medeaanvrager tellen beide voor 100% mee.Als je zelfstandig ondernemer (zzp'er) bent, dan moet je minimaal 2 jaar werkzaam zijn als zelfstandig ondernemer. Ben je niet minimaal 2 jaar werkzaam als zelfstandig ondernemer, dan kom je niet in aanmerking voor de woning.Eigen Haard wil graag passend verhuren,kijkwat dat voor jou betekent.Doorstromers krijgen voorrang bij Eigen Haard. Bij Eigen Haard is een doorstromer iemand die een zelfstandige sociale huurwoning van een corporatie leeg achterlaat binnen stadsregio Amsterdam.Hierleggen we je uit wat het verschil is tussen een doorstromer en een instromer.Huur je van Eigen Haard een sociale huurwoning en laat je die leeg achter? Je krijgt dan voorrang op andere doorstromers en er geldt voor jou geen maximale inkomenseis, wel de minimale inkomenseis.

Kaart