Huurwoning Amsterdam

Hoofdweg 288, Amsterdam

Korte samenvatting

Locatie
Amsterdam
Huurprijs
€ 692,08
Type woning
Portiekwoning
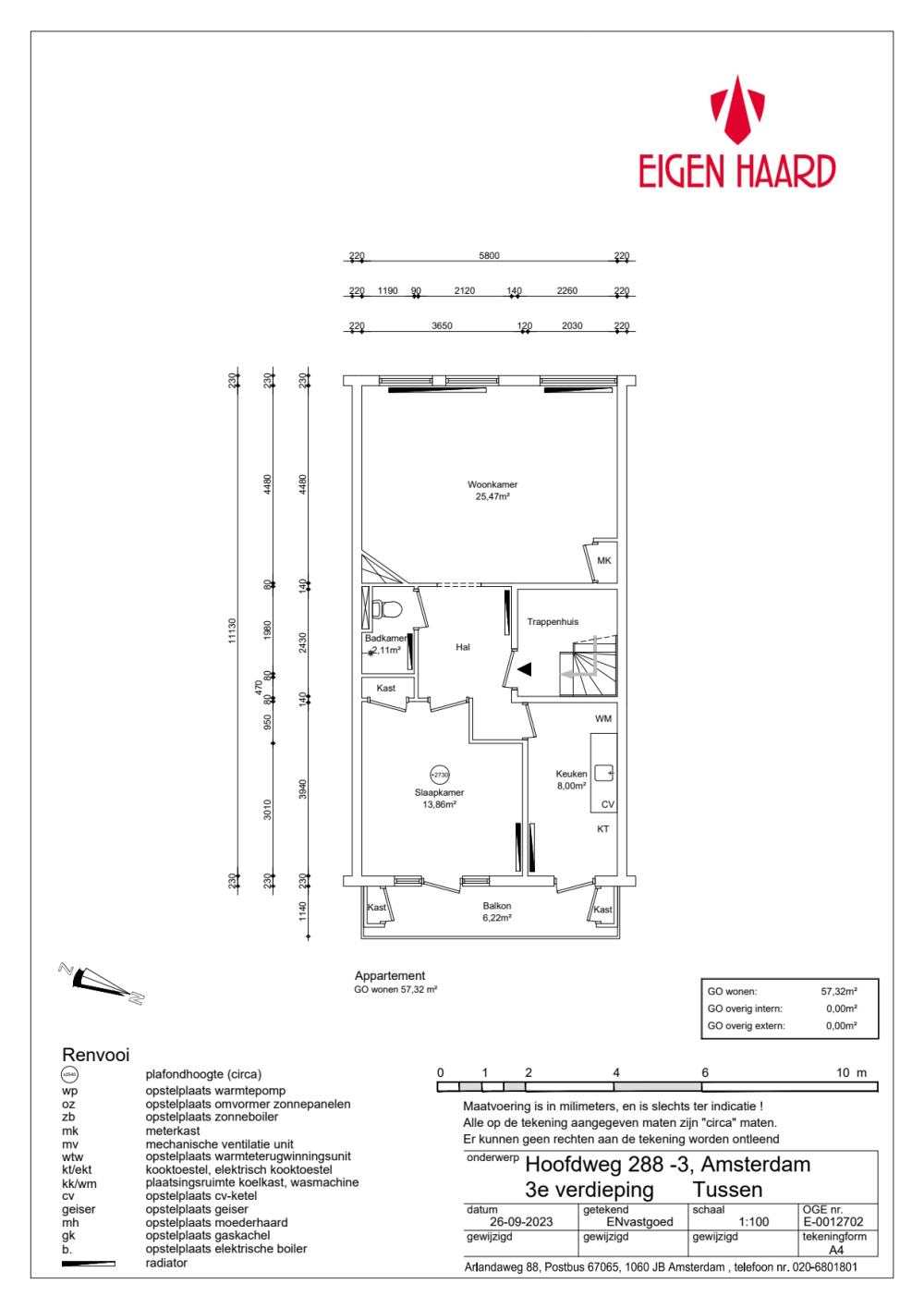
Oppervlakte:
49 m2
Kamers:
2
Slaapkamers:
1
Wachttijd:
(niet ingesteld)
Datum beschikbaar:
19 mrt 2025
Maximaal inkomen:
€ 39.055,00
Status:
Verlopen

Omschrijving woning

Bijzonderheden*Let op: Gehorige woning.De woningWoonkamer met aparte keuken2 slaapkamersWasmachine aansluiting in de badkamerBalkonIn de buurtOpenbaar vervoer op loopafstandHorecaSportscholen en supermarkten op loopafstandLet op:woningkenmerken, energielabel, plattegrond en huurprijs zijn nog onder voorbehoud. Klikhiervoor meer informatie.Technische staatWe leveren de woning volgens de Eigen Haard standaard op.  Voor meer informatie kijkt u op onzesite.Houd er rekening mee dat u zelf ook nog het een en ander moet doen om de woning naar uw smaak te maken. Denk aan schilderen van de muren en plafonds, afstomen van behang en/ of het leggen van een vloer.Wilt u de woning huren?Voor meer informatie over welke documenten u nog meer moet inleveren op het moment dat u eerste kandidaat wordt voor de woning, kijkt u op onzewebsiteParkeren/ vergunningRondom de woning geldt betaald parkeren. Wij verwijzen u naar de gemeente voor informatie hierover. Optioneel is het mogelijk om in de omgeving een parkeerplaats te huren. Bekijk ons aanbod op dewebsitevan Eigen Haard.

Kaart