Huurwoning Amsterdam

Jacob Catskade 6ST, Amsterdam

Korte samenvatting

Locatie
Amsterdam
Huurprijs
€ 911,29
Type woning
Benedenwoning
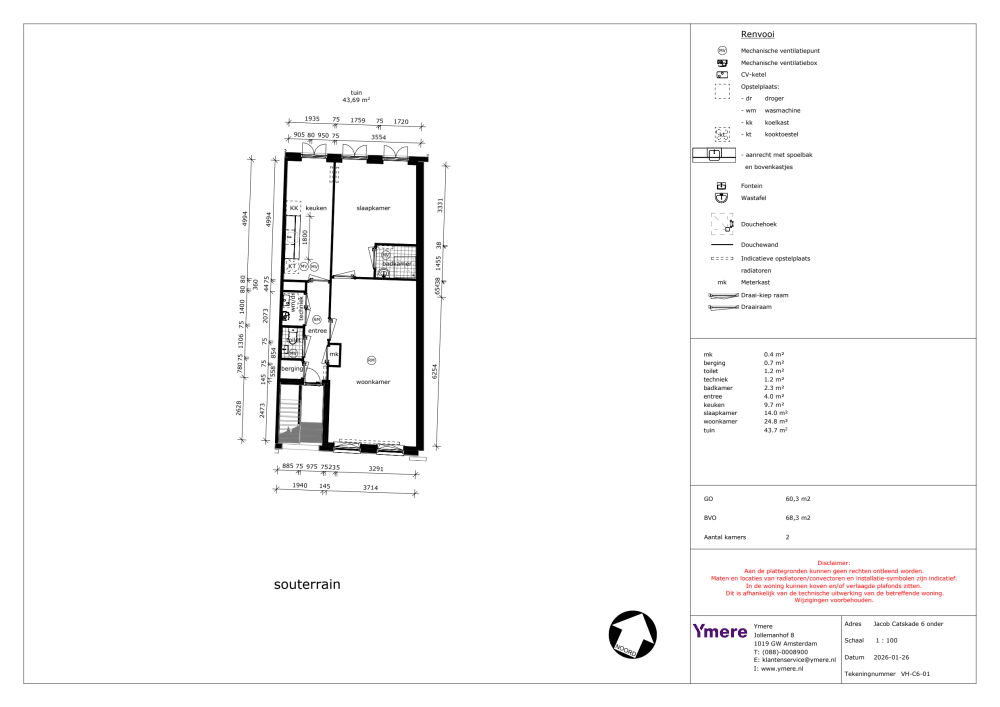
Oppervlakte:
50 m2
Kamers:
2
Slaapkamers:
1
Wachttijd:
(niet ingesteld)
Datum beschikbaar:
17 mrt 2026
Maximaal inkomen:
(niet ingesteld)
Status:
Gepubliceerd
Reageren

Omschrijving woning

Tweekamerwoning in de StaatsliedenbuurtWoningSouterrainwoning, dus gedeeltelijk onder straatniveauEigen opgang, vier traptreden (naar beneden!) naar de woningWoning is net geheel gerenoveerdMechanische ventilatie in keuken en badkamerVerwarming via eigen cv-ketelElektrisch koken (2-fase perilex-aansluiting)Donkere woonkamer aan de straatzijde. Ramen net boven straatniveauSlaapkamer, keuken en tuin aan de achterzijdeTuin 43 m2 op het noorden, is nogal ingebouwd doordat je dicht tegen de achterkant van de panden van de Tweede Nassaustraat aanzitEntree badkamer via slaapkamerGeen berging (afgezien van gangkast)BijzonderhedenLET OP! In dit bouwblok wordt de komende twee jaar nog gerenoveerd. Houd rekening met bouwlawaaiLET OP! Vanaf mei 2026 gaat de gemeente de kademuur vernieuwen en de riolering vervangen. De straat ligt dan voor lange tijd open. Ziehttps://www.amsterdam.nl/projecten/kademuren/maatregelen/jacob-catskadeStaat van de woningYmere levert iedere woning op met basiskwaliteit: schoon, heel en veilig.Wat moet u aan de woning doen?Houd er rekening mee dat u zelf nog het een en ander moet doen om de woning naar uw smaak te maken. Denk hierbij aan het leggen van ondervloeren en vloeren (minimaal 10 decibel reducerend), schilderen en behangen van de wanden en plafondsIn de buurtOvScholenWinkelstraat de Tweede Nassaustraat is om de hoekHet Westerpark ligt op 7 minuten lopenSupermarktHorecaUitvalswegenBetaald parkerenVerzamel alvast uw gegevensKrijgt u een uitnodiging om deze woning te bekijken en wilt u komen kijken? Verzamel dan alvast uw gegevens voor Ymere.  Want als u de woning komt bekijken en daarna laat weten dat u deze wilt huren, moet uuw gegevensde volgende werkdag voor 12.00 uur aanleveren. Ook als u niet kandidaat nummer 1 bent levert u de gevraagde documenten in! Kijk oponze websiteof indeze folder wat u moet aanleveren. Levert u uw gegevens niet op tijd aan? Dan krijgt u geen aanbod. U kunt de woning niet meer huren.Een intakegesprek kan onderdeel zijn van de toewijzingsprocedure. Na het gesprek hoort u van ons of wij u de woning toewijzen.BezichtigingKandidatennummer 1 t/m 10 worden uitgenodigd voor een bezichtiging op 13 Maart 2026 om 15:30.  u geen uitnodiging heeft dan kan u niet komen bezichtigen. Deze datum is onder voorbehoud u krijgt een notificatie per mail als de datum wijzigt.Tot slotDe oplevering van de woning kan afwijken van de advertentietekst, de plattegrond, de foto’s en de bezichtiging in verband met eventuele werkzaamheden.Aan deze advertentie kunt u geen rechten ontlenen.

Kaart