Huurwoning Amsterdam

J.C. Schröderstraat 19, Amsterdam

Korte samenvatting

Locatie
Amsterdam
Huurprijs
€ 699,37
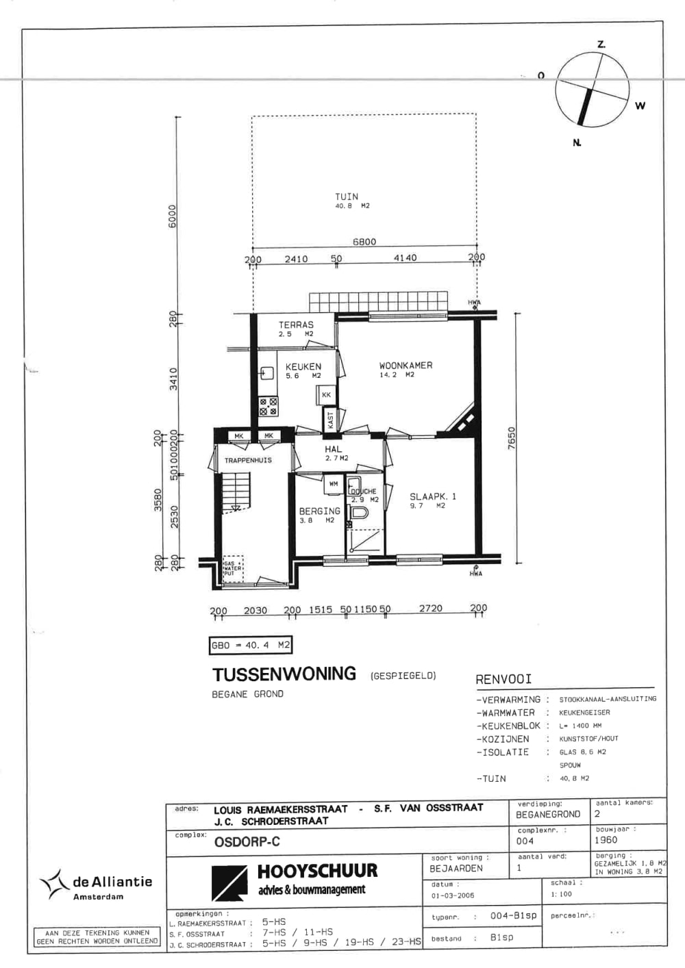
Type woning
Portiekwoning
Oppervlakte:
32 m2
Kamers:
2
Slaapkamers:
1
Wachttijd:
(niet ingesteld)
Datum beschikbaar:
2 apr 2025
Maximaal inkomen:
€ 39.055,00
Status:
Verlopen

Omschrijving woning

Beschikbaar: Klein 2-kamer appartement op de begane grond met tuin.Deze woning is geschikt voor 1 a 2 persoonshuishouden zonder kinderen.Woonkamer1 slaapkamerGesloten keukenKoken op gasGeen aansluiting voor vaatwasserRuimte voor koelkast en gasfornuisMechanische ventilatieInpandige bergingTuinWoonomgeving:Winkels, cafés en restaurants aanwezig in de omgevingBetaald parkeren in de directe omgevingOpenbaar vervoer bereikbaar op loopafstandZie ook tabblad BuurtOpleverstaat:Wij leveren de woning volgens Alliantie-standaard opHoud er rekening mee dat u zelf nog wat aan de woning moet doen, denk aan schilderen van de muren en plafonds en het leggen van een vloer

Kaart