Huurwoning Amsterdam

Julius Pergerstraat 16, Amsterdam

Korte samenvatting

Locatie
Amsterdam
Huurprijs
€ 718,00
Type woning
Appartement
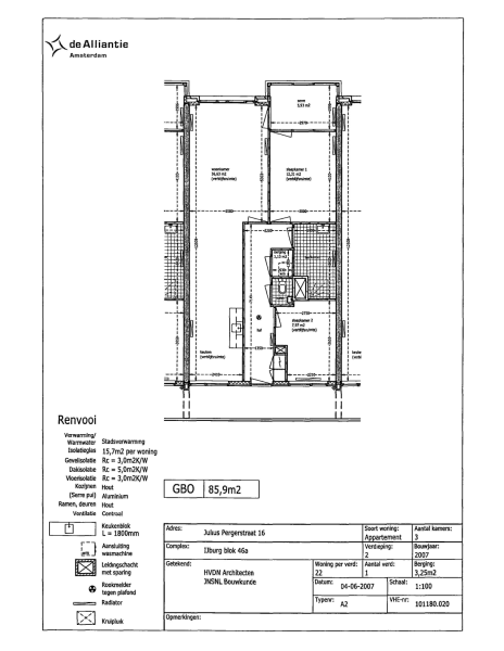
Oppervlakte:
70 m2
Kamers:
3
Slaapkamers:
2
Wachttijd:
(niet ingesteld)
Datum beschikbaar:
16 sep 2020
Maximaal inkomen:
€ 39.055,00
Status:
Verlopen

Omschrijving woning

De woning is redelijk onderhouden. Houd er rekening mee dat u zelf ook nog het een en ander moet doen om de woning naar uw smaak te maken. Denk aan het schilderen van de muren en plafonds, afstomen van behang en het leggen van een vloer. Verwarming en warm water middels stadsverwarming.  LET OP: Voor autobezitters is het noodzakelijk om een parkeervak te huren in de parkeergarage. Er wordt geen vergunning afgegeven voor het parkeren op straat.Gemeenschappelijke ruimte voor activiteiten voor de senioren aanwezig. wijkmeester in de buurt. U kunt in diverse winkels terecht voor dagelijkse boodschappen. Op een paar minuten fietsafstand ligt woon- en winkelcentrum IJburg.   Vanwege het Coronavirus beperkt de Alliantie het fysieke contact met de klant. Omdat er zoveel woningzoekenden zijn, gaan we zolang dit mogelijk is door met het verhuren van woningen die leeg staan of leeg komen. Reageert u op een woning, hou er dan rekening mee dat we in de huidige situatie de ingangsdatum van een nieuwe verhuring niet veranderen. Denkt u de komende tijd niet te kunnen of willen verhuizen, reageer dan niet op deze woning. Voorwaarden  Gezien het feit dat deze woning gelegen is in een seniorencomplex,is deze woning niet geschikt voor een gezin met nog inwonende kinderen. Een inkomenstoets maakt onderdeel uit van de toewijzingsprocedure. Uw belastbaar huishoudinkomen mag maximaal € 43.574,- per jaar zijn (prijspeil 2020). Zorgt u dat uw inkomensverklaring al op het moment van de bezichtiging in uw bezit is? De in de advertentie vermelde huurprijs is onder voorbehoud. Voor meer informatie: zie http://www.de-alliantie.nl/huren/Over-huurwoningen. Voorwaarden: Inkomensverklaring verplicht Een verklaring geregistreerd inkomen van de Belastingdienst van u en alle meeverhuizende personen (behalve kinderen) is verplicht. Deze moet van het voorgaande jaar zijn, of als deze nog niet beschikbaar is, van het jaar daarvoor. Vraag uw  inkomensverklaring  direct aan door in te loggen op Mijn Belastingdienst of via de Belastingtelefoon (0800-0543). De corporatie controleert uw inkomen bij de toewijzing en wil uw inkomensverklaring(en) altijd ontvangen, ook als er geen bedrag op staat. Zorg ervoor dat het inkomen in uw inschrijving klopt. Anders loopt u het risico dat de corporatie u afwijst als u eerste kandidaat wordt.

Kaart