Huurwoning Amsterdam

Lijnbaansgracht 124C, Amsterdam

Korte samenvatting

Locatie
Amsterdam
Huurprijs
€ 900,07
Type woning
Portiekwoning
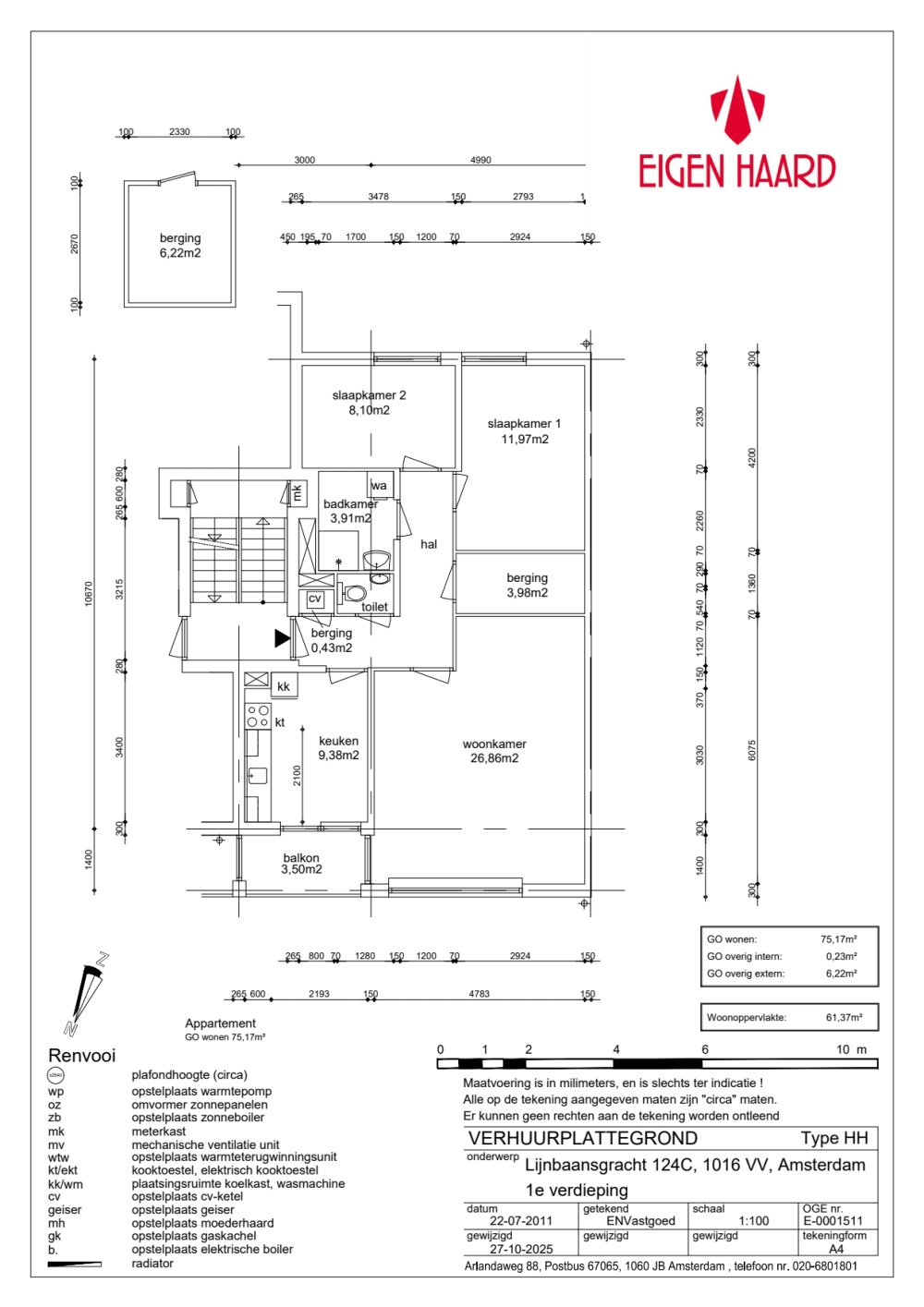
Oppervlakte:
60 m2
Kamers:
3
Slaapkamers:
2
Wachttijd:
(niet ingesteld)
Datum beschikbaar:
6 nov 2025
Maximaal inkomen:
(niet ingesteld)
Status:
Verlopen

Omschrijving woning

BijzonderhedenBetaald parkerenLinknaar gemeente AmsterdamDe servicekosten worden vastgesteld bij het opstellen van de huurovereenkomst en komen bovenop de huurprijs, die zodanig wordt aangepast dat huurtoeslag kan worden aangevraagd.De woning is onder voorbehoud geadverteerd met een huurprijs conform prijspeil 2025. Indien de uiteindelijke verhuring in 2026 plaatsvindt zal de huurprijs conform prijspeil 2026 worden vastgesteld.De woning1e verdieping3- kamerwoning2 slaapkamersKoken op gasBergingGesloten keukenToilet in de halWasmachine aansluiting in de badkamerBalkonBuurtOpenbaar vervoer dichtbijDiverse winkels in de omgevingDiverse (afhaal) restaurants in de omgevingWelke voorzieningen zijn er in de buurt? Kijk bij tabblad Buurt om meer over de buurt te weten te komen..Let op:woningkenmerken, plattegrond en huurprijs zijn nog onder voorbehoud. Klik hier voor meer informatie:https://www.woningnetregioamsterdam.nl/Nieuws/Huurprijzen%20onder%20voorbehoud%20bij%20Eigen%20HaardTechnische staatWe leveren de woning volgens de Eigen Haard standaard op.  Voor meer informatie kijkt u op onze site:https://www.eigenhaard.nl/weten-en-regelen/sociale-huur/nieuwe-huurders/oplevering#F4BBB11819D44A4184749E7F8DD30BD7Houd er rekening mee dat u zelf ook nog het een en ander moet doen om de woning naar uw smaak te maken. Denk aan schilderen van de muren en plafonds, afstomen van behang en/ of het leggen van een vloer.Wilt u de woning huren?Voor meer informatie over welke documenten u nog meer moet inleveren op het moment dat u eerste kandidaat wordt voor de woning, kijkt u op onze website:https://www.eigenhaard.nl/weten-en-regelen/sociale-huur/nieuwe-huurders/acceptatie-en-toewijzing

Kaart