Huurwoning Amsterdam

Linnaeusdwarsstraat 23B, Amsterdam

Korte samenvatting

Locatie
Amsterdam
Huurprijs
€ 477,20
Type woning
Benedenwoning
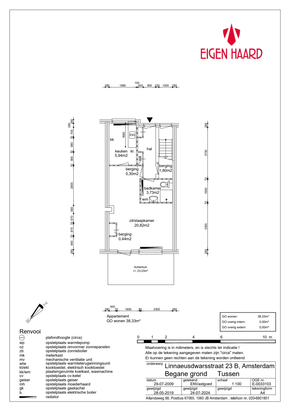
Oppervlakte:
30 m2
Kamers:
1
Slaapkamers:
0
Wachttijd:
(niet ingesteld)
Datum beschikbaar:
9 mei 2025
Maximaal inkomen:
€ 39.055,00
Status:
Verlopen

Omschrijving woning

BijzonderhedenJongerenwoningmet 5-jarencontract. We raden het af om hier met een kind te gaan wonen.Studio (met aparte keuken)Drukke omgevingDe woningWoon-/slaapkamer met dichte keukenWasmachine aansluiting in de badkamerToilet in de badkamerTuinGedeelde fietsenbergingIn de buurtHoreca, winkels en openbaar vervoer in directe omgevingPark Frankendael op twee minuten loopafstandLet op:woningkenmerken, energielabel, plattegrond en huurprijs zijn nog onder voorbehoud. Klikhiervoor meer informatie.Technische staatWe leveren de woning volgens de Eigen Haard standaard op. Voor meer informatie kijkt u op onzesite.Houd er rekening mee dat u zelf ook nog het een en ander moet doen om de woning naar uw smaak te maken. Denk aan schilderen van de muren en plafonds, afstomen van behang en/ of het leggen van een vloer.Wilt u de woning huren?Voor meer informatie over welke documenten u nog meer moet inleveren op het moment dat u eerste kandidaat wordt voor de woning, kijkt u op onzewebsiteParkeren met vergunning:Linknaar gemeente Amsterdam

Kaart