Huurwoning Amsterdam

Lutonhof 19, Amsterdam

Korte samenvatting

Locatie
Amsterdam
Huurprijs
€ 707,96
Type woning
Appartement
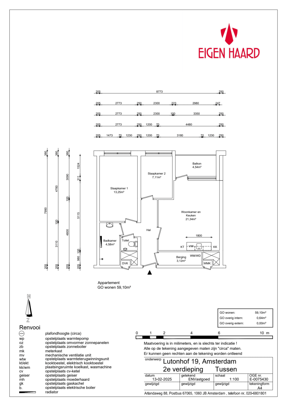
Oppervlakte:
49 m2
Kamers:
3
Slaapkamers:
2
Wachttijd:
(niet ingesteld)
Datum beschikbaar:
11 apr 2025
Maximaal inkomen:
€ 39.055,00
Status:
Verlopen

Omschrijving woning

Bijzonderheden2e verdiepingLiftWoonkamer met open keukenKoken op elektra (2-fase aansluiting)2 slaapkamersWasmachine aansluiting in inpandige bergingBadkamer met doucheApart ToiletStadsverwarming (zorgt voor warmte en warmwater). Let op ! Deze energiekosten zitten niet in de huurprijs.VloerverwarmingVentilatiesysteem met warmteterugwinningInpandig balkonGeen aparte berging beneden !inpandige FietsenstallingComplex gelegen aan weg en nabij treinspoor(zie ook foto)Complex naast Station SloterdijkServicekosten nog onder voorbehoudBuurtNaast station SloterdijkOpenbaar vervoer op loopafstandNabij WesterparkLET OP !Bouwwerkzaamheden in directe omgeving.Parkeren/ vergunning niet mogelijk:Rondom de woning zijn geen parkeerplekken en in de omgeving geldt betaald parkeren. Bewoners van (nieuwbouw)woningen komen niet meer in aanmerking voor een parkeervergunning. Wij verwijzen u naar de gemeente voor informatie hierover.Let op:woningkenmerken, energielabel, plattegrond en huurprijs zijn nog onder voorbehoud. Klikhiervoor meer informatie.Technische staatWe leveren de woning volgens de Eigen Haard standaard op.  Voor meer informatie kijkt u op onzesite.Houd er rekening mee dat u zelf ook nog het een en ander moet doen om de woning naar uw smaak te maken. Denk aan schilderen van de muren en plafonds, afstomen van behang en/ of het leggen van een vloer.Wilt u de woning huren?Voor meer informatie over welke documenten u nog meer moet inleveren op het moment dat u eerste kandidaat wordt voor de woning, kijkt u op onzewebsiteControleert u verder voor u reageert op deze woning of uw inkomensgegevens correct en update in Woningnet staan. Dit voorkomt teleurstelling.

Kaart