Huurwoning Amsterdam

Marnixstraat 269, Amsterdam

Korte samenvatting

Locatie
Amsterdam
Huurprijs
€ 511,11
Type woning
Portiekwoning
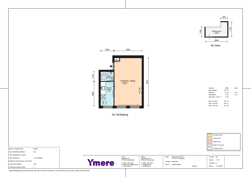
Oppervlakte:
24 m2
Kamers:
1
Slaapkamers:
0
Wachttijd:
(niet ingesteld)
Datum beschikbaar:
9 feb 2026
Maximaal inkomen:
€ 39.055,00
Status:
Gepubliceerd
Reageren

Omschrijving woning

Portiekwoning met één kamer op de 2eetage in het Centrum/west van AmsterdamWoningOpen keukenBadkamer en toilet samenWasmachineaansluiting in de keukenDe woning heeft leef- en contact geluiden, oudbouwWel bovenburenGeen buitenruimteBerging aanwezigBijzonderhedenleuke, licht en zeer centraal gelegen studioGoede bereikbaarheid per OVGeen liftGeen balkonKleine berging op zolderStaat van de woningYmere levert iedere woning op met basiskwaliteit: schoon, heel en veilig.Wat moet u aan de woning doen?Houd er rekening mee dat u zelf nog het een en ander moet doen om de woning naar uw smaak te maken. Denk hierbij aan het leggen van ondervloeren en vloeren (minimaal 10 decibel reducerend), schilderen en behangen van de wanden en plafondsOvernameDe vertrekkende bewoner biedt ter overname aan:VloerSlimme lampOp de overnames kunnen geen rechten worden ontleend. Bij defect worden ze voor de oplevering door Ymere verwijdert. Bij eventuele toekomstige gebreken zijn de kosten voor de huurder zelf. Bij ondertekening van de huurovereenkomst bent u automatisch eigenaar. Ymere voert hier geen werkzaamheden aan uit.In de buurtOpenbaar vervoerDiverse scholenWinkels in de JordaanSupermarkt op loopafstandWesterparkUitvalswegenBetaald parkerenVerzamel alvast uw gegevensKrijgt u een uitnodiging om deze woning te bekijken en wilt u komen kijken? Verzamel dan alvast uw gegevens voor Ymere.  Want als u de woning komt bekijken en daarna laat weten dat u deze wilt huren, moet uuw gegevensde volgende werkdag voor 12.00 uur aanleveren. Ook als u niet kandidaat nummer 1 bent levert u de gevraagde documenten in! Kijk oponze websiteof indeze folder wat u moet aanleveren. Levert u uw gegevens niet op tijd aan? Dan krijgt u geen aanbod. U kunt de woning niet meer huren.Een intakegesprek kan onderdeel zijn van de toewijzingsprocedure. Na het gesprek hoort u van ons of wij u de woning toewijzen.BezichtigingKandidatennummer 1 t/m 10 worden uitgenodigd voor een bezichtiging op16 februari 2026 om 13:30 uur, wees op tijd.u geen uitnodiging heeft dan kan u niet komen bezichtigen. Deze datum is onder voorbehoud u krijgt een notificatie per mail als de datum wijzigt.Tot slotDe oplevering van de woning kan afwijken van de advertentietekst, de plattegrond, de foto’s en de bezichtiging in verband met eventuele werkzaamheden.Aan deze advertentie kunt u geen rechten ontlenen.

Kaart