Huurwoning Amsterdam

Meeuwenlaan 115, Amsterdam

Korte samenvatting

Locatie
Amsterdam
Huurprijs
€ 909,94
Type woning
Tussenwoning
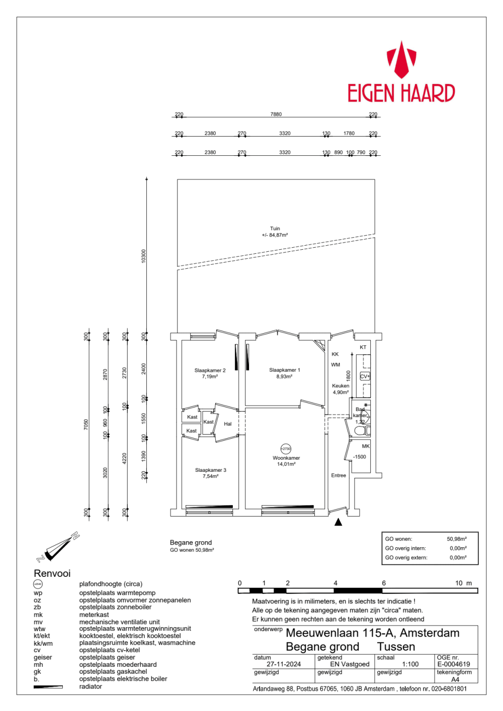
Oppervlakte:
43 m2
Kamers:
4
Slaapkamers:
3
Wachttijd:
(niet ingesteld)
Datum beschikbaar:
1 feb 2025
Maximaal inkomen:
(niet ingesteld)
Status:
Verlopen

Omschrijving woning

Bijzonderheden:Parkeren met vergunningGehorige woningGelijkvloerse woningRenovatieproject in de toekomstGemeentelijk monumentDe woning:Woonkamer met aparte keuken3 slaapkamersWasmachine aansluiting in de keukenToilet in de halAchtertuinIn de buurt:BasisscholenTwee middelbare scholen op fietsafstandPont IjpleinOpenbaar vervoer (ongeveer 3 minuten lopen)Supermarkt en horeca in de buurtNoorderparkLet op:woningkenmerken, plattegrond en huurprijs zijn nog onder voorbehoud.Klik hiervoor meer informatie.Technische staatWe leveren de woning volgensde Eigen Haard standaardop.Houd er rekening mee dat u zelf nog wat aan de woning moet doen. Denk aan schilderen van de muren en plafonds, afstomen van behang en/ of het leggen van een vloer.Parkeren met vergunning:Linknaar gemeente Amsterdam.Parkeren kan voldoende in de buurt met een vergunning, mits er een vergunning wordt toegekend. Wij verwijzen u naar de gemeente voor informatie hierover. Optioneel is het mogelijk om in de omgeving een parkeerplaats te huren. Bekijk ons aanbod op dewebsitevan Eigen Haard.Verouderde woningDeze woningen zijn verouderd. Er zijn plannen in voorbereiding voor een aanpak op middellange termijn. De exacte plannen zijn nog niet bekend. De uitvoering wordt verwacht binnen 5 jaar.Let op:het is een gehorige woning.Wordt het Renovatie, kijk dan hier wat dat voor u kan betekenen:https://www.eigenhaard.nl/weten-en-regelen/sociale-huur/sloop-en-renovatie/renovatie/Wordt het Sloop, kijk dan hier wat dat voor u kan betekenen:https://www.eigenhaard.nl/weten-en-regelen/sociale-huur/sloop-en-renovatie/sloop-nieuwbouw/Wilt u de woning huren?Welke documenten u moet inleveren op het moment dat u eerste kandidaat wordt voor de woning, leest uhier.

Kaart