Huurwoning Amsterdam

Meeuwenlaan 269HS, Amsterdam

Korte samenvatting

Locatie
Amsterdam
Huurprijs
€ 688,27
Type woning
Benedenwoning
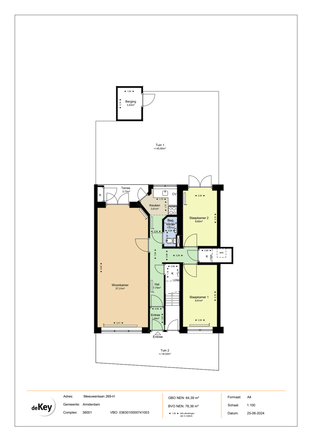
Oppervlakte:
50 m2
Kamers:
3
Slaapkamers:
2
Wachttijd:
(niet ingesteld)
Datum beschikbaar:
14 jul 2025
Maximaal inkomen:
€ 39.055,00
Status:
Verlopen

Omschrijving woning

Let op! Plattegrond kan afwijken van de werkelijkheid.Beschrijving woningBetreft een 3 kamer begane grond woning met tuin en schuur. LET OP !! tuin en schuur alleen via woning bereikbaar dus geen achterom. Woning is gebruikt als wisselwoning en hierdoor voorzien van een Laminaatvloer, lampen en luxaflex.Kenmerken woning:energielabel Aniet bereikbaar met liftopen keukenelektrisch koken met perilex aansluiting (2 fase)aansluiting wasmachine in de trapkastindividuele cv combi-keteltoilet in badkamerdubbele beglazinggehorige woningtuinberging in de tuinIn de buurt:winkelsvoorzieningenopenbaar vervoerscholennatuurAfval en parkeren:Benieuwd waar u huisafval kan laten?Klikhiervoor meer informatie over huisvuil in AmsterdamBenieuwd of er een parkeermogelijkheid is bij deze woning? Let op: bij sommige woningen is een parkeervergunning niet toegestaan.Klikhiervoor meer informatie over parkeervergunningen in de gemeente AmsterdamTechnische staat van onze woningenWe leveren de woning volgens de Lieven de Key standaard op. Houd er rekening mee dat u zelf nog wat aan de woning moet doen. Denk hierbij bijvoorbeeld aan behangen en schilderen en het leggen van een vloer. Kijkhiervoor de kwaliteitseisen van Lieven de Key en hoe wij een woning opleveren.BeschikbaarheidDit is de datum waarop wij verwachten dat de huurovereenkomst in kan gaan. Let op: aan vermelding van deze datum kunnen geen rechten worden ontleend. Deze datum kan nog veranderen.WaarborgsomLieven de Key brengt een waarborgsom ter hoogte van €647,-  in rekening. De waarborgsom betaalt u samen met de eerste huur vóór ondertekening van de huurovereenkomst.Verzamel alvast uw gegevensWordt u uitgenodigd voor de bezichtiging? Verzamel dan alvast uw gegevens. Wacht niet totdat u de eerste kandidaat bent. Deze documenten moet u straks aanleveren:Verklaring kandidaat(verplicht document)Inkomensverklaring van de belastingdienst(verplicht document)Verhuurdersverklaring: woont u nog thuis? Dan hoeft u dit document niet aan te leverenUittreksel Basisregistratie Personen(BRP) waar de huwelijkse staat, historische adressen en aantal persoenen in het huishouden op staat van de gemeente waar u nu woont: woont u in Amsterdam? Dan hoef u dit document niet aan te leveren.

Kaart