Huurwoning Amsterdam

Moerdijkstraat 44HS, Amsterdam

Korte samenvatting

Locatie
Amsterdam
Huurprijs
€ 707,69
Type woning
Benedenwoning
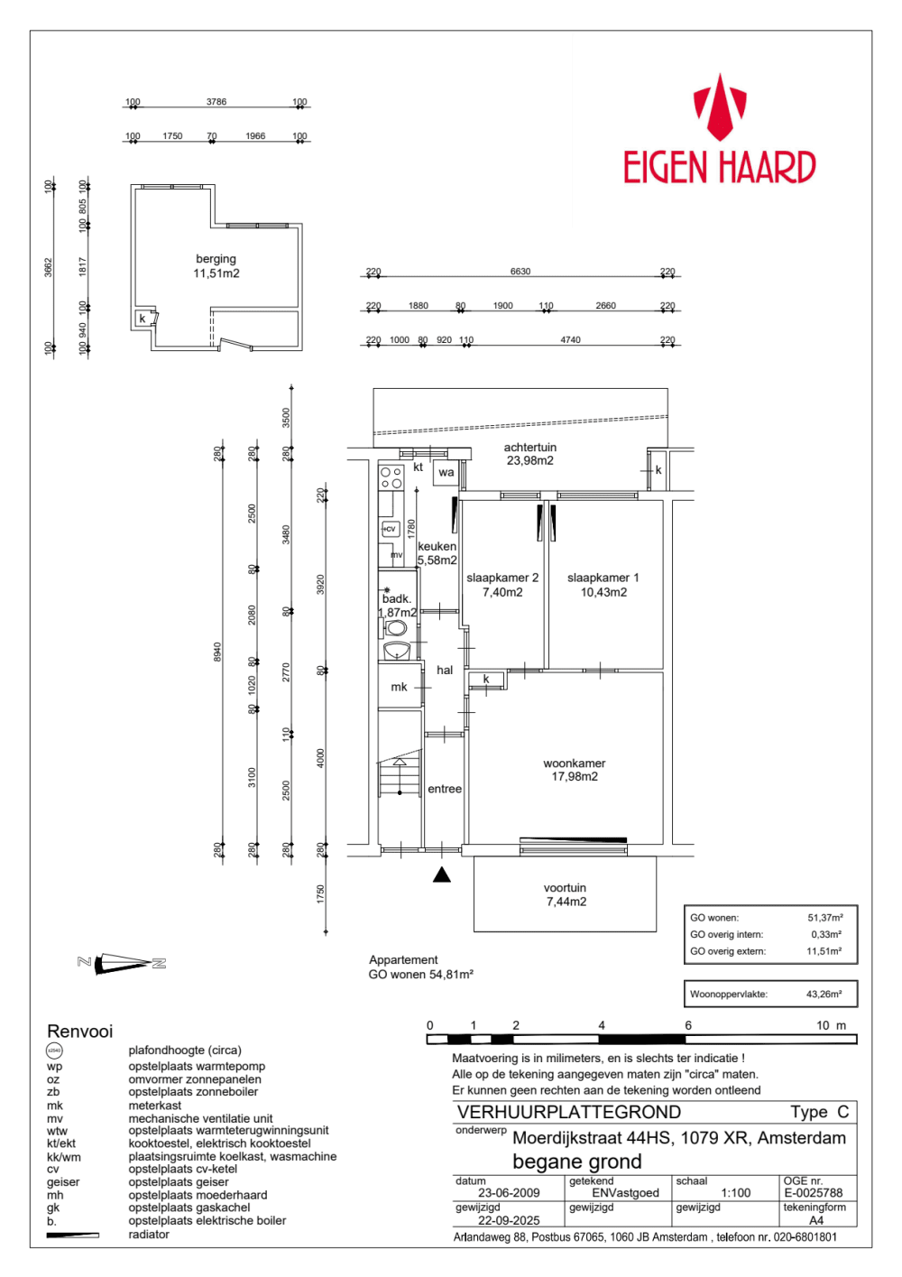
Oppervlakte:
43 m2
Kamers:
3
Slaapkamers:
2
Wachttijd:
(niet ingesteld)
Datum beschikbaar:
8 nov 2025
Maximaal inkomen:
€ 39.055,00
Status:
Verlopen

Omschrijving woning

Bijzonderheden:Gehorige woningBetaald parkeren voor de deur. Voor meer informatie hierover klikt uhier.Omgeving: U kunt hinder ondervinden van vliegtuigverkeerLet op:woningkenmerken, plattegrond en huurprijs zijn nog onder voorbehoud. Klikhiervoor meer informatie.De woningWoonkamer met aparte keuken2 slaapkamerWasmachine aansluiting in de keukentuin bereikbaar via de keuken slaapkamerToilet in de badkamerEr is een gaskraan voor het koken op gasZolderberging bereikbaar via trappenhuisZonnepanelenOp het dak liggen zonnepanelen die stroom opwekken. Goed voor het milieu en je bespaart geld. De zonnepanelen zijn aangesloten op een omvormer. Valt de elektriciteit uit? Dan zorgt deze omvormer voor stroom uit het stopcontact, je hebt daarom ook een aparte energieaansluiting nodig.Het bedrag van de zonnepanelen is opgenomen in de servicekosten. Je tekent bij de huurovereenkomst een clausule.Deze woning is recent verduurzaamd. Voor meer informatie kijkt u op dezewebsite.In de buurtHet appartement is gelegen in een complex aan een rustige straat in de Rivierenbuurt en om de hoek van de Rijnstraat, met al zijn winkelvoorzieningen voor de dagelijkse boodschappen.Dichtbij de RAI, het Mirandabad, het Martin Luther Kingpark en de Maasstraat, maar ook zijn er vele gezellige horecagelegenheden als lunchrooms, cafés en restaurants én dat ook op maar een paar minuten fietsafstand van de Pijp.Op loopafstand zijn diverse tram- en busverbindingen en op fietsafstand zijn er twee NS stations, station RAI of station Amstel.Met de metrohalte van de Noord-Zuidlijn bent u binnen enkele minuten op het centraal station van Amsterdam.De Ring A10 met goede verbindingen naar Haarlem, Den-Haag/Schiphol en de A2 richting Utrecht zijn makkelijk en snel bereikbaar.Let op:woningkenmerken, plattegrond en huurprijs zijn nog onder voorbehoud. Klikhiervoor meer informatie.Technische staatWe leveren de woning volgens de Eigen Haard standaard op.  Voor meer informatie kijkt u op onzesite.Houd er rekening mee dat u zelf ook nog het een en ander moet doen om de woning naar uw smaak te maken. Denk aan schilderen van de muren en plafonds, afstomen van behang en/ of het leggen van een vloer.Wilt u de woning huren?Voor meer informatie over welke documenten u nog meer moet inleveren op het moment dat u eerste kandidaat wordt voor de woning, kijkt u op onzewebsite

Kaart