Huurwoning Amsterdam

Niftrikhof 429, Amsterdam

Korte samenvatting

Locatie
Amsterdam
Huurprijs
€ 863,25
Type woning
Appartement
Oppervlakte:
49 m2
Kamers:
2
Slaapkamers:
1
Wachttijd:
(niet ingesteld)
Datum beschikbaar:
28 jan 2026
Maximaal inkomen:
(niet ingesteld)
Status:
Gepubliceerd
Reageren

Omschrijving woning

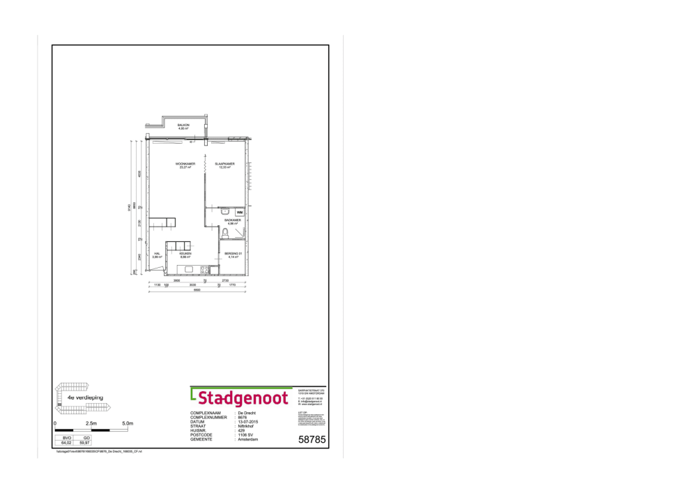
2-kamer seniorenwoning gelegen op de vierde verdieping in Holendrecht/Reigersbos Amsterdam.Woning2-kamerwoning1 slaapkamerGelegen op de vierde verdiepingLift aanwezigOpen keukenElektrisch kokenWasmachineaansluiting in de badkamerToilet in BadkamerBalkon aanwezigBetonvloerHouten kozijnenDubbelglas aanwezigPersoons alarmering aanwezigWoning in ouderencomplex 'de Dracht'GerenoveerdBuurtWinkels en horeca op loopafstandOp loopafstand van winkelcentrum HolendrechtOv halte Holendrechtplein op loopafstandOv halte Paasheuvelweg op fietsafstandBrasapark op loopafstandZie ook tabblad LocatieParkerenLet op: bij sommige woningen wordt vanuit de gemeente geen parkeervergunning afgegeven. - Bent u benieuwd of het bij deze woning mogelijk is om een parkeervergunning te verkrijgen?Kijk op:www.amsterdam.nl/parkeren-verkeer/parkeervergunning/parkeervergunning-bewoners/of neem contact op met de gemeente voor meer informatie.Soms is het mogelijk om in de omgeving via Stadgenoot een eigen parkeerplaats te huren. Bekijk ons aanbod op:https://aanbod.stadgenoot.nl/parkeerplaatsen/huuraanbodAanvullende informatieWoningDeze gelijkvloerse tweekamerwoning ligt op de vierde verdieping van seniorencomplex de Drecht. De woning heeft een grote, lichte woonkamer met open keuken. Over de volledige breedte van de woonkamer geniet u van een ruim balkon met een mooi uitzicht over de wijk. Naast de woonkamer en open keuken beschikt u over een slaapkamer, berging en badkamer. De comfortabele seniorenwoning is voorzien van dubbel glas en een persoonlijk alarmsysteem. U bereikt uw woning gemakkelijk via het trappenhuis of de lift. De stookkosten betaalt u niet apart, want die zitten bij de servicekosten. Die servicekosten zijn daarom iets hoger dan normaal.OmgevingWooncentrum De Drecht ligt in de wijk Amsterdam-Holendrecht. Een ideale locatie: midden in een rustige, groene omgeving, vlakbij openbaar vervoer en winkels. Alle belangrijke voorzieningen zijn op loopafstand. U bent in een paar minuten in het winkelcentrum of op station Holendrecht. Ook het AMC-ziekenhuis is vlakbij. De Drecht biedt plaats aan 311 seniorenwoningen. Het complex beschikt over een mooie binnentuin en heeft een grote en gezellige ontmoetingsruimte. Er vinden regelmatig activiteiten plaats die georganiseerd worden door de actieve bewonersvereniging. In seniorencomplex De Drecht vindt u alle voorzieningen onder één dak. Voor de persoonlijke verzorging maakt u een afspraak bij de kapper of pedicure. U kunt altijd vertrouwen op de 24-uurreceptie, die in geval van nood medische hulp kan inschakelen. Ook handig: in het gezondheidscentrum van De Drecht kunt u terecht voor alle zorgverleners en zorgvoorzieningen. Van de huisarts en fysiotherapeuten tot een apotheek en een steunpunt voor thuiszorg.Aanvullende voorwaardenDeze woning wordt niet toegewezen aan huishoudens met kinderen.ToewijzingsinformatieSeniorenwoningen worden niet verhuurd aan huishoudens met kinderen.WaarborgsomVoor Sociale Huur betaalt u een waarborgsom ter hoogte van een maand huur. De waarborgsom betaalt u samen met de eerste huur.Aan te leveren documentenVerzamel uw documenten op tijdWordt  u na de selectiedatum uitgenodigd voor de bezichtiging? Verzamel dan alvast uw documenten. Wij vragen u uw documenten binnen 2 dagen aan te leveren als u 1e kandidaat bent voor de woning. Lees hier welke documenten u moet aanleveren:Aan te leveren documenten.DuurzaamElektrisch koken: Er is geen gas meer in huis. U kookt dus elektrisch. In de keuken zit een Perilex-aansluiting voor een elektrisch kooktoestel. Dit is een aparte (2-fase) aansluiting. Let op! Het elektrisch vermogen van uw kooktoestel mag niet groter zijn dan 7,4 KWTechnische staatStadgenoot levert de woning schoon, heel en veilig aan u op. Houd er rekening mee dat u zelf nog wat aan de woning moet doen. Denk aan schilderen van de muren en plafonds, afstomen van behang en/of het leggen van een vloer.

Kaart