Huurwoning Amsterdam

Osdorper Ban 421, Amsterdam

Korte samenvatting

Locatie
Amsterdam
Huurprijs
€ 705,24
Type woning
Portiekwoning
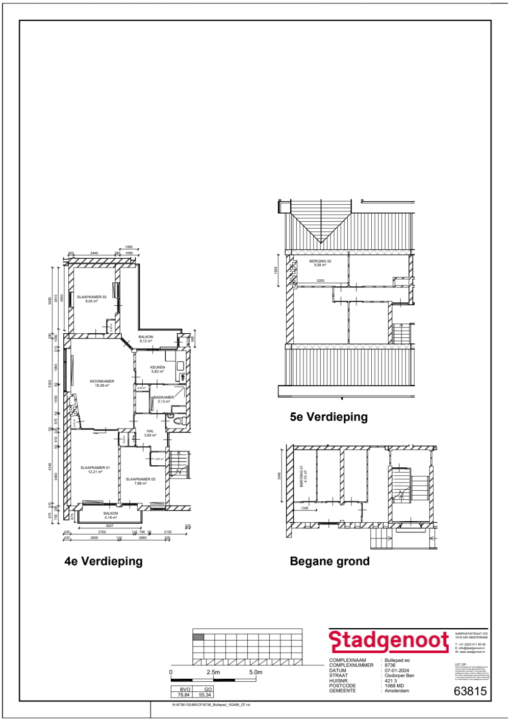
Oppervlakte:
58 m2
Kamers:
4
Slaapkamers:
3
Wachttijd:
(niet ingesteld)
Datum beschikbaar:
23 jan 2025
Maximaal inkomen:
€ 39.055,00
Status:
Verlopen

Omschrijving woning

Vierkamerwoning op de vierde etage zonder lift in OsdorpWoninglaminaat op de foto's is verwijderd!betonnen vloerenwasmachine-aansluiting in de badkamerelectrisch kokengesloten keukenbadkamer voorzien van douche; toilet apartberging op de vijfde etage en op de begane grondBuurtwinkels en openbaar vervoer op loopafstandParkerenLet op: bij sommige woningen wordt vanuit de gemeente geen parkeervergunning afgegeven. - Bent u benieuwd of het bij deze woning mogelijk is om een parkeervergunning te verkrijgen?Kijk op:www.amsterdam.nl/parkeren-verkeer/parkeervergunning/parkeervergunning-bewoners/of neem contact op met de gemeente voor meer informatie.Soms is het mogelijk om in de omgeving via Stadgenoot een eigen parkeerplaats te huren. Bekijk ons aanbod op:https://aanbod.stadgenoot.nl/parkeerplaatsen/huuraanbodVerzamel uw documenten op tijdWordt  u na de selectiedatum uitgenodigd voor de bezichtiging? Verzamel dan alvast uw documenten. Wij vragen u uw documenten binnen 3 dagen aan te leveren als u 1e kandidaat bent voor de woning. Lees hier welke documenten u moet aanleveren:Aan te leveren documenten.Elektrisch koken: Er is geen gas meer in huis. U kookt dus elektrisch. In de keuken zit een Perilex-aansluiting voor een elektrisch kooktoestel. Dit is een aparte (2-fase) aansluiting. Let op! Het elektrisch vermogen van uw kooktoestel mag niet groter zijn dan 7,4 KW.Technische staatStadgenoot levert de woning schoon, heel en veilig aan u op. Houd er rekening mee dat u zelf nog wat aan de woning moet doen. Denk aan schilderen van de muren en plafonds, afstomen van behang en/of het leggen van een vloer.Let op:Woningkenmerken en plattegrond kunnen mogelijk iets afwijken van de werkelijkheid. Bijvoorbeeld omdat wij nog werkzaamheden moeten uitvoeren na de bezichtiging. De basis zoals het aantal kamers en het type woning staan vast.

Kaart