Huurwoning Amsterdam

Overschiestraat 170T, Amsterdam

Korte samenvatting

Locatie
Amsterdam
Huurprijs
€ 959,56
Type woning
Appartement
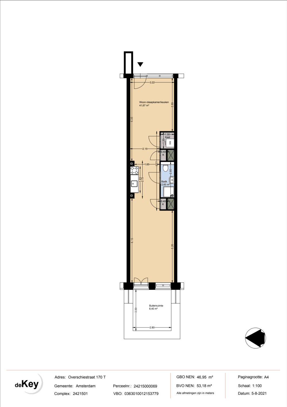
Oppervlakte:
44 m2
Kamers:
1
Slaapkamers:
0
Wachttijd:
(niet ingesteld)
Datum beschikbaar:
26 feb 2026
Maximaal inkomen:
(niet ingesteld)
Status:
Gepubliceerd
Reageren

Omschrijving woning

Let op! Eventuele huurtoeslag is afhankelijk van uw inkomen en de huurprijs van deze woning. Doe daarom altijd een proefberekening op de website van de belastingdienst.Let op! Plattegrond kan afwijken van de werkelijkheid.Let op! Deze woning is niet bestemd voor studenten.Let op! Voor een jongerencontract mag je niet ouder zijn dan 27 jaar.Beschrijving woningMooie studio op de begane grond. Er ligt een mooie pvc vloer in, die ter overname wordt aangeboden. Daarnaast is er een kastenwand ter overname met een uitklapbaar bed, ideaal voor het besparen van ruimte en multifunctioneel gebruik. Ook wordt een inbouw kledingkast ter overname aangeboden.Beschikbaarheid per 25 februari 2026Dit is de datum waarop wij verwachten dat de huurovereenkomst in kan gaan. Let op: aan vermelding van deze datum kunnen geen rechten worden ontleend. Deze datum kan nog veranderen.WaarborgsomLieven de Key brengt een waarborgsom ter hoogte van €808 in rekening. De waarborgsom betaalt u samen met de eerste huur vóór ondertekening van de huurovereenkomst.Kenmerken woning:energielabel A+++bereikbaar met liftopen keukenelektrisch koken met perilex aansluiting (2 fase)aansluiting wasmachine in de bergingstadsverwarmingtoilet in badkamerdubbele beglazingtuinkleine berging in de woningIn de buurt:winkelsvoorzieningenopenbaar vervoerscholennatuurAfval en parkeren:Benieuwd waar u huisafval kan laten?Klikhiervoor meer informatie over huisvuil in AmsterdamBenieuwd of er een parkeermogelijkheid is bij deze woning? Let op: bij sommige woningen is een parkeervergunning niet toegestaan.Klikhiervoor meer informatie over parkeervergunningen in de gemeente AmsterdamTechnische staat van onze woningenWe leveren de woning volgens de Lieven de Key standaard op. Houd er rekening mee dat u zelf nog wat aan de woning moet doen. Denk hierbij bijvoorbeeld aan behangen en schilderen en het leggen van een vloer. Kijkhiervoor de kwaliteitseisen van Lieven de Key en hoe wij een woning opleveren.Verzamel alvast uw gegevensWordt u uitgenodigd voor de bezichtiging? Verzamel dan alvast uw gegevens. Wacht niet totdat u de eerste kandidaat bent. Deze documenten moet u straks aanleveren:Verklaring kandidaat(verplicht document)Inkomensverklaring van de belastingdienst(verplicht document)Verhuurdersverklaring: woont u nog thuis? Dan hoeft u dit document niet aan te leverenUittreksel Basisregistratie Personen(BRP) waar de huwelijkse staat, historische adressen en aantal persoenen in het huishouden op staat van de gemeente waar u nu woont: woont u in Amsterdam? Dan hoef u dit document niet aan te leveren.

Kaart