Huurwoning Amsterdam

Pieter van der Doesstraat 110, Amsterdam

Korte samenvatting

Locatie
Amsterdam
Huurprijs
€ 697,09
Type woning
Benedenwoning
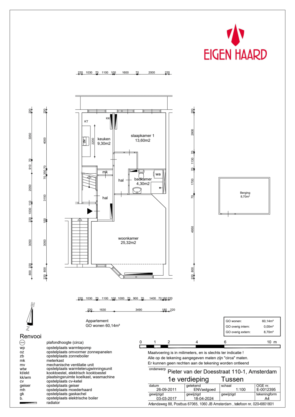
Oppervlakte:
49 m2
Kamers:
2
Slaapkamers:
1
Wachttijd:
(niet ingesteld)
Datum beschikbaar:
16 okt 2025
Maximaal inkomen:
€ 39.055,00
Status:
Verlopen

Omschrijving woning

De woningWoonkamer met gesloten keuken1 slaapkamerWasmachine aansluiting in het toiletToilet in de halExterne berging aanwezigWasmachine aansluiting in de badkamerVloer gratis ter overnameGeen liftDe woning bevindt zich op de 1e etageIn de buurtOpenbaar vervoer (ongeveer 2 minuten lopen)SupermarktErasmusparkLet op:woningkenmerken, energielabel, plattegrond en huurprijs zijn nog onder voorbehoud. Klikhiervoor meer informatie.Technische staatWe leveren de woning volgens de Eigen Haard standaard op.  Voor meer informatie kijkt u op onzesite.Houd er rekening mee dat u zelf ook nog het een en ander moet doen om de woning naar uw smaak te maken. Denk aan schilderen van de muren en plafonds, afstomen van behang en/ of het leggen van een vloer.Wilt u de woning huren?Voor meer informatie over welke documenten u nog meer moet inleveren op het moment dat u eerste kandidaat wordt voor de woning, kijkt u op onzewebsite

Kaart